• Neubau Centre résidentiel intergénérationnel, Genf

  • Eaux Vives, Genf

  • 2026

  • Missione Cattolica Genf

  • Eingeladener Studienauftrag

  • Neubau Bienenforschungszentrum Campus Agroscope, Posieux

  • Posieux

  • 2025

  • Bundesamt für Bauten und Logistik BBL

  • Wettbewerb, engere Wahl

Projektnummer

364

Ort

Posieux

Jahr

2025

Programm

Büro und Gewerbe

Auftraggeber

Bundesamt für Bauten und Logistik BBL

Status

Wettbewerb, engere Wahl

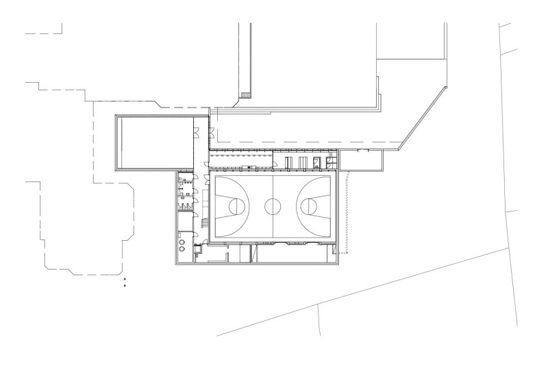
Das Bienenforschungszentrum erscheint als präzise positionierter Baukörper: Am Schnittpunkt der beiden Umfassungsmauern, im Übergang zwischen Straße und Wiese und an der topografisch markanten Nordkante entsteht ein kompakter, turmartiger Bau, der in alle Richtungen ausstrahlt – ein Tempel der Bienenforschung. Nach Aussen zeigt sich das Gebäude als naturnaher, archaischer und biodiverser Kubus, während es im Inneren ein hochfunktionales Forschungszentrum beherbergt.

  • Kamin Heizzentrale Feldschlösschen, Rheinfelden

  • Rheinfelden

  • 2025–2026

  • Feldschlösschen AG

  • Realisiert

  • Umbau Halle L 0.1, Walzwerk, Münchenstein

  • Walzwerk, Münchenstein

  • 2025–

  • Swiss Finance & Property

  • In Planung

Projektnummer

372

Ort

Walzwerk, Münchenstein

Jahr

2025–

Programm

Kultur und Sport

Auftraggeber

Swiss Finance & Property

Status

In Planung

Beteiligte

  • Glaser Baupartner

Die Halle L 0.1 liegt an prominenter Lage am Hauptplatz des Walzwerkareals. Es handelt sich um einen großen, eingeschossigen Raum (+ Keller) zwischen zwei Grundstücken, der ursprünglich bis zur Schließung des Aluminiumwerks 1999 als große Betriebshalle genutzt wurde. Er ist über 8 m hoch, mit vorhandenen Kränen ausgestattet und wird als ein Raum ohne Unterteilung als Lager genutzt. Räumlich liegt sie zwischen zwei Flügeln kleinerer, unterteilter Räume und öffnet sich zum heutigen „Hauptplatz.“ Die angrenzenden Flügel sind unterteilt und an eine Reihe von Gewerbetreibenden vermietet, darunter Fotografen, Tischler und eine Kunstschule. Diese Flügel sind nicht Teil des Projektes. SFUP hat die Halle L 0.1 als für das Walzwekareal wertvolles und historisch bedeutsames Gebäude identifiziert und versucht, durch eine Innensanierung dem Walzwerk ein neues, modernes Leben zu geben.

  • Hochregallager Feldschlösschen, Rheinfelden

  • Rheinfelden

  • 2025–

  • Feldschlösschen AG

  • In Planung

Projektnummer

363

Ort

Rheinfelden

Jahr

2025–

Programm

Infrastruktur

Auftraggeber

Feldschlösschen AG

Status

In Planung

Beteiligte

  • Jauslin & Stebler Ingenieure
  • Otto Partner Architekten

Im Projekt NOVA entsteht ein Hochregallager mit Verteilungssystem, dessen Gestaltung gemeinsam mit Stadtgestaltung, Verwaltung und Denkmalpflege entwickelt wurde. Höhe und Kubatur folgen betrieblichen Anforderungen und binden das Volumen an die bestehenden Hallen an. Bezugnehmend auf die höchsten Bestandsbauten prägen vertikale Lisenen, horizontale Fugen und ein modern interpretierter Zinnen-Dachrand den Bau. Ein mineralischer Sockel bildet die Basis, das Verteilungssystem erhält transluzentes Profilglas. Die Metallfassade des Hochregallagers zeigt eine zurückhaltende Farbigkeit und rhythmische, konkav geformte Elemente.

  • Umnutzung Luftgässlein, Basel

  • Basel

  • 2025–

  • Privat

  • Studie

  • QP1 Bahnhofsgebiet Sissach - ein durchlässiges Ensemble

  • Sissach

  • 2025–

  • CIAG, Gemeinde Sissach, BUD

  • Studie, in Planung

Projektnummer

349

Ort

Sissach

Jahr

2025–

Programm

Städtebau

Auftraggeber

CIAG, Gemeinde Sissach, BUD

Status

Studie, in Planung

Beteiligte

  • Pascal Gysin, Landschaftsarchitekt

Das Quartierplanverfahren QPI Sissach schafft die Grundlage für eine nachhaltige Entwicklung des Bahnhofsareals. Ziel ist ein architektonisch hochwertiges Ensemble und wirtschaftlich tragfähiges, aus Neu- und Bestandsbauten mit Dienstleistung, Gewerbe und Wohnen zu schaffen. Eine klare und dichte städtebauliche Struktur mit zentraler Erschliessung, durchlässigen Höfen und vielfältigen Aussenräumen stärkt den Ort als Ankunfts- und Begegnungsraum. Unterschiedliche Bautypologien, robuste Materialität und ressourcenschonende Bauweisen sichern langfristige Qualität, Identität und soziale Vielfalt.

Ein durchlässiges Ensemble
Im Zusammenspiel mit den Bestandsbauten – dem Restaurant Bären und dem Pub – entsteht zwischen Bahnhofstrasse und Hauptstrasse ein durchlässiges Ensemble, das die bestehende Struktur ergänzt und das räumliche Potenzial des Ortes nachhaltig stärkt. Eine poröse Abfolge von Höfen, Passagen und Zwischenräumen mit hoher Aufenthaltsqualität vernetzt sich selbstverständlich mit bestehenden Wegen und schafft neue Verbindungen. So entsteht ein feinmaschiges Geflecht aus Nachbarschaften, das langfristige Flexibilität und vielfältige Nutzungen ermöglicht.Die Neubauten sind kontextuell verankert und erhalten zugleich eine eigenständige architektonische Identität. Hochwertige Materialien sowie sorgfältig gestaltete Übergänge und Schwellenräume erzeugen räumliche Klarheit und eine dauerhafte Gebrauchstauglichkeit. Unterschiedliche Geschossigkeiten, variierende Traufhöhen, differenzierte Sockelzonen sowie konstruktiv und typologisch präzise ausformulierte Baukörper fördern soziale Vielfalt und einen differenzierten architektonischen Ausdruck.

  • Arealentwicklung Futuro II, Liestal

  • Liestal

  • 2025–

  • BGV

  • Studie

  • Entwicklung Areal Nieder-Schönthal, Füllinsdorf

  • Füllinsdorf

  • 2025–

  • Mettler Entwickler AG, die Gemeinde Füllinsdorf, die Ref. Kirchgemeinde Frenkendorf - Füllinsdorf und die Genossenschaft Migros Basel

  • kooperatives Workshopverfahren

  • Arealentwicklung Friessstrasse, Zürich Seebach

  • Zürich

  • 2025

  • Modissa Immobilien AG / Topik Partner AG

  • Eingeladener Studienauftrag

Projektnummer

371

Ort

Zürich

Jahr

2025

Programm

Büro und Gewerbe, Städtebau, Wohnungsbau

Auftraggeber

Modissa Immobilien AG / Topik Partner AG

Status

Eingeladener Studienauftrag

Beteiligte

  • mit BHSF Architekten Zürich
  • Tom Boyle, Bauigenieur

Die Modissa Immobilien AG ist Eigentümerin der Parzelle SE3988 im Bereich der Friesstrasse 32-36 in 8050 Zürich. Das heutige Gebäudeensemble mit Baujahr 1903/1909 wurde ursprünglich als Fabrikati-onsgebäude genutzt und ist damit Teil der industriellen Geschichte Zürichs. 1947 wurde das Ensemble durch einen Lagerbau ergänzt, 1953 erfolgte ein weiterer Fabrikanbau. Die Liegenschaft ist vermietet und weist mit der Wohnnutzung, den Büroräumlichkeiten und Gewerbeeinheiten einen breiten Nut-zungsmix auf. Nach einem Grossbrand im Juli 2025 wurde der eingeschossige Lagerbau an der Friesstrasse 36 komplett zerstört. Das Grundstück mit einer Fläche von 2'602 m² befindet sich in der Wohnzone W5. Aufgrund des in die Jahre gekommenen Zustands und der vorhandenen Ausnützungsreserven beabsichtigt die Eigentüme-rin, ein Um- und/oder Neubauprojekt zu realisieren. Die Parzelle ist mit einer nachhaltigen, qualitativ ansprechenden Wohnsiedlung und minimaler Gewerbenutzung im Erdgeschoss zu entwickeln.

  • Erweiterung Pflegeheim Lindenfeld, Suhr

  • Suhr, AG

  • 2025

  • Gemeindeverband Lindenfeld

  • Planerwahlverfahren 1. Rang

  • Pilotprojekt für kostengünstiges Wohnen, Pontresina

  • Pontresina

  • 2025

  • Fundaziun da Puntraschigna

  • Offener Projektwettbewerb, 3.Preis

Projektnummer

361

Ort

Pontresina

Jahr

2025

Programm

Wohnungsbau

Auftraggeber

Fundaziun da Puntraschigna

Status

Offener Projektwettbewerb, 3.Preis

Mit dem Pilotprojekt setzt die Fundaziun da Puntraschigna ein Zeichen für eine neue Wohnbaukultur. Hinter dem Kongresszentrum entsteht ein Wohnhaus für Einheimische. Zwischen Via Maistra und Via dals Ers vermittelt der Bau zwischen grossen und kleinteiligen Strukturen. Die Erschliessung wird zum sozialen Raum: Eine natürlich belichtete Treppe verbindet versetzte Wohnungen und flexibel nutzbare Jokerzimmer. Eingangshalle, Treppenbalkon und der gemeinschaftliche Aussenraum unter Lärchen fördern Begegnung. Massiv gemauerte Wohn- und Schlafräume bieten Rückzug, offene Koch- und Essbereiche schaffen Gemeinschaft. Die Setzung reagiert auf Parzelle, Baumbestand und Ausblicke ins Dorf und Val Roseg.

  • Studie Lindhof; Konzepte und Strategien im Umgang mit Bestandshallen, Winterthur

  • Winterthur

  • 2025

  • SBB Immobilien

  • Studie, kooperatives Workshopverfahren

  • Wohnen im ehemaligen Bruderholzspital, Bruderholz

  • Brduerholz

  • 2025

  • Eigeninitative

  • Studie

Projektnummer

358

Ort

Brduerholz

Jahr

2025

Programm

Wohnungsbau

Auftraggeber

Eigeninitative

Status

Studie

Beteiligte

  • Maurin Nissen

Was wäre, wenn das Kantonsspital Baselland auf dem Bruderholz nicht weiterbetrieben, sondern als neuer Wohn- und Lebensraum genutzt würde? Eine private Studie will diese Idee zur Diskussion stellen. Sie zeigt das Potenzial des Bestands: Umbau statt Abriss, Nutzung statt Leerstand. So entsteht dringend benötigter Wohnraum, CO₂ wird gespart und die Identität des Ortes bewahrt. Gedacht als „kleine Stadt“, könnte ein dichtes, sozial durchmischtes und nachhaltiges Quartier entstehen – energieautark, ressourcenschonend und mit hoher Lebensqualität. Die Studie ist ein Entwurf und lädt Politik, Fachwelt und Öffentlichkeit zum Dialog ein.

Mehr auf www.lebensraum-bruderholz.ch

  • Wohnüberbauung Baugenossenschaft Pünt, Regensberg

  • Regensberg

  • 2025

  • Baugenossenschaft Pünt

  • Wettbewerb

  • Studienauftrag Neubau Kindergärten, Eiken

  • Eiken

  • 2025

  • Gemeinde Eiken

  • Gesamtleistungswettbewerb

  • Sanierung Gemeindeverwaltung, Emmen

  • Emmen

  • 2025

  • Gemeinde Emmen

  • Wettbewerb

  • «Wohnen in der Flussaue» Areal Papierfabrik Ost, Zwingen

  • Zwingen

  • 2024–

  • Einwohnergemeinde Zwingen, Barko Immobau AG, Sursee

  • Wettbewerb, 1.Preis

Projektnummer

345

Ort

Zwingen

Jahr

2024–

Programm

Büro und Gewerbe, Städtebau, Wohnungsbau

Auftraggeber

Einwohnergemeinde Zwingen, Barko Immobau AG, Sursee

Status

Wettbewerb, 1.Preis

Beteiligte

  • Westpol Landschaftsarchitektur
  • Gartenmann Engineering

Ein Ort mit hoher Identität schreibt seine Geschichte fort. Die einstige Papierfabrik wird
zu einem wertvollen Wohnort inmitten einer einmaligen Umgebung. Im Laufental
gelegen, auf einer Insel umflossen von der Birs, eingebettet in die sanften, bewaldeten
Hügel des Juras.

Wir verstehen das Planungsgebiet als Quartier, das in Ergänzung zum historischen Dorfkern
und zum Bahnhofsareal komplementäre Qualitäten aufweist. Die konkrete städtebauliche
Setzung sieht vor den Planungsbereich der beiden Quartierplanteile mit unterschiedlichen
Nachbarschaften zu bebauen. In der Differenz der verschiedenen Baubereiche sehen wir
einen Mehrwert; in der räumlichen und sozialen Varianz einen Reichtum.
Die vier Baubereiche gruppieren sich um die zentrale Erschliessungsachse, die einerseits den
Bezug zum historischen Schlossareal schafft und andererseits über die bestehende Brücke
eine Verbindung zur Etzmatt und darüber hinaus zum Bahnhof gewährleistet. Sie ist die
Nabelschnur, die die einzelnen Teilabschnitte zusammenbindet.

  • Arealentwicklung «Mischzone Aare», Schönewerd

  • Schönewerd

  • 2024–

  • Ecoreal AG; Zürich; Karbacher / Burckhardt Entwicklungen AG, Basel

  • Wettbewerb, Studie 1.Preis Teil Ecoreal

  • Aufstockung Birmannsgasse, Basel

  • Basel

  • 2024–

  • Privat

  • In Planung

  • Umbau und Sanierung St. Jakobstrasse 7, Basel

  • Basel

  • 2024–

  • Regimo Basel

  • In Planung

  • Umbau und Sanierung Birmannsgasse, Basel

  • Basel

  • 2024–

  • Privat

  • In Planung

  • Studie Villa Tschudy, Sissach

  • Sissach

  • 2024

  • Eigeninitative, strategische Studie im Auftrag

  • In Planung

Projektnummer

366

Ort

Sissach

Jahr

2024

Programm

Städtebau

Auftraggeber

Eigeninitative, strategische Studie im Auftrag

Status

In Planung

Beteiligte

  • Beer & Merz Architekt:innen

  • Wohnhochhaus Rankhof, Basel

  • Basel

  • 2024

  • Immobilien Basel-Stadt

  • Wettbewerb

Projektnummer

346

Ort

Basel

Jahr

2024

Programm

Städtebau, Wohnungsbau

Auftraggeber

Immobilien Basel-Stadt

Status

Wettbewerb

Beteiligte

  • op-arch Zürich
  • dsp Ingenieure + Planer, AG Uster
  • HSSP, Zürich
  • Gartenmann Engineering, Basel
  • Bakus AG, Basel
  • NM Fassadentechnik AG, Basel

Fotografie

  • PONNIE Images, Aachen/Köln

Der unmittelbare Kontext des Wohnhochhauses im wilden Osten von Basel ist heute geprägt von grossen Infrastrukturbauten: Bahntrassee und Gleisbogen, sowie eine massstabslos wirkende Bushalle. Für eine potentielle Entwicklung des
Stadtraumes Ost als Wohnort ist der Neubau des Wohnhochhauses deshalb ein wichtiger Baustein, der als stadtseitiger Auftakt und identitätsstiftender Ort gelesen werden kann. Wie beim Judo, geht es hier darum, die Kraft des Gegenübers zu seinen Gunsten zu nutzen.
Die städtebauliche Setzung entwickelt sich deshalb aus einer Art Koexistenz mit der Parkgarage. Die direkte
Verbindung zum begrünten Dach auf dem 9. Geschoss schafft einen Hochhausgarten und ergänzt die Sockelnutzungen. Übergeordnet fügt sich der Turm in die Abfolgeordnung der Hochpunkte entlang des Rheins und schafft damit eine durchlässige Stadtlandschaft im Osten von Basel.

Die urbane Vielfalt, die städtische Dichte fehlt dem Standort an der Rankstrasse. Das Haus steht isoliert zwischen bestehenden und geplanten Verkehrsinfrastrukturen und dem zukünftigen Neubau der BVB-Busgarage. Es gilt, einen Mikrokosmos für das Wohnhochhaus zu entwerfen, welcher mit dem Typus eines Grandhotels in den Bergen vergleichbar ist.

  • Wohnen auf dem «Papieri-Areal Etappe 5», Cham

  • Cham

  • 2024

  • Cham Group

  • Wettbewerb

Projektnummer

344

Ort

Cham

Jahr

2024

Auftraggeber

Cham Group

Status

Wettbewerb

Fotografie

  • dunkelbunt  (Visualisierungen)

  • Umbau Wohnhaus Gstaltenrainweg, Riehen

  • Riehen

  • 2024

  • Privat

  • Studie

  • Studienauftrag «Baufeld F» 2. Stufe, Haus «Gartenlaube», Zwhatt-Areal Regensdorf

  • Regensdorf

  • 2024

  • pensimo

  • Wettbewerb, 1. Preis Baufeld F2

Projektnummer

338

Ort

Regensdorf

Jahr

2024

Programm

Wohnungsbau

Auftraggeber

pensimo

Status

Wettbewerb, 1. Preis Baufeld F2

  • Studienauftrag «Baufeld F» Zwhatt-Areal Regensdorf

  • Regensdorf

  • 2024

  • pensimo

  • Wettbewerb 2. Stufe

  • Artenschutzzentrum Zolli Basel

  • Region

  • 2024

  • Zolli Basel

  • Konzeptstudie

  • Haus für einen Jazzmusiker, Baden

  • Baden

  • 2023–

  • Privat

  • In Planung

Projektnummer

329

Ort

Baden

Jahr

2023–

Programm

Wohnungsbau

Auftraggeber

Privat

Status

In Planung

Beteiligte

  • In Zusammenarbeit mit Fabio Gsell, Architekt Baden

Die Parzelle mit dem bestehenden Einfamilienhaus von 1927 liegt an markanter Stelle, zwischen der steilen, bewaldeten Uferböschung zur Limmat und dem SBB-Geleise mit der dahinterliegendenIndustrie des ehemaligen Elektrotechnikkonzerns BBC in Baden. Teil des Grundstückes ist neben dem Haupthaus mit Atelier im Garten auch eine eingeschossige Garage in Richtung Westen. Das Haus soll energetisch saniert und räumlich neu geordnet werden. Mit einer Aufstockung findet das Haus einen neuen Auftritt und behauptet sich gegenüber der üppigen Natur!

  • Schulraumplanung Gemeinde Oberwil, Oberwil

  • Oberwil

  • 2023–

  • Gemeinde Oberwil

  • In Planung

  • Umbau denkmalgeschütztes Wohnhaus, Basel

  • Basel

  • 2023–

  • Privat

  • In Planung

  • «Common Ground» Areal Zentrum, Ettingen

  • Ettingen

  • 2023

  • Gemeinde Ettingen

  • Testplanung

Projektnummer

333

Ort

Ettingen

Jahr

2023

Programm

Büro und Gewerbe, Infrastruktur, Wohnungsbau

Auftraggeber

Gemeinde Ettingen

Status

Testplanung

Beteiligte

  • META LANDSCVHAFTSARCHITEKTUR

Im, Rahmen einer Testplanung wurde das Verdichtungspotential im Zentrum des Dorfes untersucht. Die Verlegung des heutigen Werkhofs bietet die Chance das Zentrum von
Ettingen grossräumig aufzuwerten und Neues mit Altem zu verbinden;Geschichte und Neuerfindung schaffen hier einen übergeordneten Mehrwert für das ganze Dorf. Zwei ausgesuchte Teilgebiete sollen mit einer Mischung von ausgesuchten Neubauten und umgenutzten Bestandsbauten zu einem atmosphärisch dichten und durchlässigen Wohn- und Lebensort zusammengebunden werden. Die Perimeter verfügen jeweils über eine spezifische Prägung, sind aber über ein Wegnetz fein miteinander verbunden und durchlässig erlebbar. Bewusst sollen hier im Zentrum sehr unterschiedliche Wohnformen angeboten werden, die ein lebendiges und sozial durchmischtes Miteinander ermöglichen und eine gemeinsam erlebbare Identität schaffen. Der Neubau der Verwaltung ermöglicht es der Gemeinde darüber hinaus, mit einen offenen und zeitgemässen Auftritt einen Schritt in die Zukunft zu machen.

  • Fassadensanierung Raiffeisenbank, Basel

  • Basel

  • 2023

  • Regimo Basel

  • In Planung

  • Neubau Heizzentrale Bachgraben, Allschwil

  • Allschwil

  • 2023

  • primeo

  • Studienauftrag 1. Preis, In Planung

Projektnummer

331

Ort

Allschwil

Jahr

2023

Programm

Infrastruktur

Auftraggeber

primeo

Status

Studienauftrag 1. Preis, In Planung

Pragmatic beauty - thinking about infrastructure ... woodchip heating center in allschwil as «objet parlant»

«add it up» Angrenzend an das Werkhofareal von Allschwil fügt sich der Neubau für eine Holzheizzentrale parallel zum öffentlichen Fussweg an die Parzellen- und Landesgrenze. Die aus der Logik der Befahrbarkeit entwickelte Positionierung wird pragmatisch übernommen. Im Übergang zur Landschaft nimmt das Gebäude eine prägnante und weitherum sichtbare Position ein, der in der Gestaltung Rechnung getragen wird.

Wir verstehen den Neubau einerseits als Zweckbau; möchten aber mit der Behandlung der Aussenhülle auch zeigen, wie Infrastrukturbauten sichtbarer Teil unserer gebauten Umwelt werden. Wir verstehen dabei die Rolle der Architektur als Aufgabe dem Gebäude neben seiner Zweckerfüllung als Schutzhülle auch eine Art übergeordnete Lesbarkeit zu geben. Über das Bild der elementierten Verkleidung aus karbonatisiertem Holz wird die Funktion des Gebäudes als «Umwandler von Energie» veranschaulicht. Zusammen mit der additiven Inzenierung der technischen Elemente entsteht eine Art «objet parlant», das sich über die vertikale Begrünung und das bewachsene Dach mit dem Ort am Siedlungsrand verbindet.

  • Verwaltungsneubau Kreuzboden, Liestal

  • Liestal

  • 2023

  • Kanton Basellandschaft

  • Wettbewerb

Projektnummer

330

Ort

Liestal

Jahr

2023

Programm

Büro und Gewerbe, Städtebau

Auftraggeber

Kanton Basellandschaft

Status

Wettbewerb

Beteiligte

  • Alea Baumanagement AG
  • ZPF Structure AG
  • Atelier Descombes Rampini SA
  • HeiVi AG
  • SanIng AG
  • immoing GmbH
  • Gartenmann Engineering AG

Fotografie

  • Visualisierungen David Klemmer

Der Neubau für die kantonale Verwaltung versteht sich als wichtiges Element im Rahmen eines Masterplanes zur Weiterentwicklung des Raumes «Rheinstrasse», welcher derzeit zusammen mit der federführenden Stadt Liestal erarbeitet wird. Mit dem Projekt soll die heute unbefriedigende Situation in den Aussenbereichen des Verwaltungs-Campus erheblich aufgewertet werden, indem Oberflächenparkierungen weitestgehend aufgehoben und versiegelte Flächen aufgebrochen und zu «Oasen» mit viel Raum für heimische Artenvielfalt aufgewertet werden. Durch eine neue Freiraumgestaltung sollen für die Verwaltung und die angrenzen-den Quartiere attraktive und zum Durchschreiten, Verweilen und Arbeiten einladende Aussenräume geschaffen werden.

Das Neue Haus versteht sich als als kraftvoller Abschluss der städtebaulichen Komposition zwischen Magistrale und Bahndamm. Ein systemischer Holzbau als Sinnbild für eine regional verankerte, nachhaltige Kantonsverwaltung mitten in Liestal in unmittelbarem Dialog mit dem historischen Bestand und dem grossen Garten.

  • Masterplan Schulanlage «Hintere Gärten», Riehen

  • Riehen

  • 2023

  • Gemeinde Riehen

  • Studie

  • Borromäum - ein durchmischter Quartierbaustein, Basel

  • Basel

  • 2023

  • Verein Borromäum

  • Wettbewerb

Projektnummer

323

Ort

Basel

Jahr

2023

Programm

Städtebau, Wohnungsbau

Auftraggeber

Verein Borromäum

Status

Wettbewerb

Beteiligte

  • Schmidt + Partner Bauingenieure AG
  • Pro Engineering AG
  • HeiVI
  • SanIng AG
  • Rapp AG

Wir stellen uns hier mitten in Basel - in sehr guter Lage - einen bunt durchmischten Quartierbaustein vor. Umgebaute Bestandsbauten und ausgesuchte Neubauten schaffen ein charaktervolles und zeitgemässes, dichtes Miteinander. Durchgrünte Aussenräume verweben die unterschiedlichen Wohnorte mit dem Innern des Blockrandes zu einem durchlässigen Ganzen – ein nachhaltiges und diverses Wohnumfeld schafft Aufenthaltsqualität und identitätsstiftende Gemeinschaft.Anders als in der Vorstudie schlagen wir vor, die beiden Parzellen in ihrer Komplementarität zu erhalten und sie aus dem Bestand heraus zu einem durchmischten Quartierbaustein zu entwickeln.

  • Umbau Bäumlihofstrasse, Basel

  • Basel

  • 2023

  • Privat

  • Realisiert

  • Umbau Mehrfamilienhaus, Basel

  • Basel

  • 2023

  • Privat

  • Realisiert

Projektnummer

289

Ort

Basel

Jahr

2023

Auftraggeber

Privat

Status

Realisiert

Das im Jahr 1931 erbaute dreigeschossige Mehrfamilienhaus an der Bäumlihofstrasse 68 in Basel wird von einer Familie bewohnt. Das Erdgeschoss ist fremdvermietet . Im Rahmen der Umbau- und Sanierungsarbeiten wurde die Wohnung im 1. Obergeschoss neu als zentrales Wohngeschoss für die Familie ausgebildet. Mit einem Wanddruchbruch und dem Einbau einer neuen Küche wird der Wohn- und Essbereich zum zentralen Ort im Haus; Sanitär- und Elektroinstallationen wurden im ganzen Gebäude erneuert und à jour gebracht.

  • Treppe im Hinterhof, Basel

  • Basel

  • 2023

  • Privat

  • Realisiert

  • Neues Wohnen und Kultur im ehemaligen Bezirksgericht in Waldenburg; Umnutzung eines historischen Konglomerats, Waldenburg

  • Waldenburg

  • 2022–2024

  • Wohnstadt Basel

  • Realisiert

Projektnummer

321

Ort

Waldenburg

Jahr

2022–2024

Programm

Ausstellung, Wohnungsbau

Auftraggeber

Wohnstadt Basel

Status

Realisiert

Fotografie

  • Annette Fischer

Die zwei Häuser im Waldenburger Stedtli stammen gemäss dem Bauinventar Kanton Basel-Landschaft (BIB) im Kern aus dem 17. Jahrhundert und sind im Laufe der Zeit überformt und umgebaut worden. Die Wohnstadt hat die Liegenschaft des ehemaligen Bezirksgerichtes erworben, sanft saniert und als Wohnraum umgebaut. Diverse Räumlichkeiten im Erdgeschoss und im Schopf werden vom lokalen Kulturverein genutzt. Die Obergeschosse werden zu Wohnungen umgebaut; eine neue Laube schafft den fehlenden Aussenraum und der vormalig abgeschlossene Hof wurde zur Gasse geöffnet.

  • B202 Umbau und Erweiterung privates Wohnhaus, Basel

  • Basel

  • 2022–2024

  • Privat

  • Realisiert

Projektnummer

307

Ort

Basel

Jahr

2022–2024

Programm

Wohnungsbau

Auftraggeber

Privat

Status

Realisiert

Beteiligte

  • Bettina Ginsberg, Innenarchitektin
  • b4, Möbelbau
  • Glaser Baupartner, Kosten und Bauleitung

Fotografie

  • Annette Fischer

Die im schönen Bruderholzquartier liegende, bestehende Doppelhaushälfte soll für eine vierköpfige Familie umgebaut und erweitert werden. Zentrales Anliegen ist es, das Wohnhaus den genauen Bedürfnissen der Familie anzupassen und mit dem grosszügigen Garten zu verbinden.

Der neue Anbau fasst einen südorientierten Aussenbereich und wird subtil in das abgestufte Terrain eingefügt und so mit dem Landschaftsbild verwoben. Ein leicht abgesetzter zylindrischer Erschliessungskörper verbindet den neuen Hausteil mit dem Eingangsgeschoss des Wohnhauses. Die abgesenkte Wohnerweiterung wird nordseitig überwachsen und integriert sich mit einer keramischen Verkleidung in die Landschaft. Der Blick über den Grünraum bis zur Waldgrenze im Süden bleibt so von der Allee her erhalten. Die Innenräume sind hochwertig materialisiert und verbinden Bestandsbau und Neubaubereiche als durchgängiges Ganzes. Die Räume sind so ins Gelände gesetzt, dass eine terrassierte Landschaft mit spezifischen Orten entsteht. Die Grosszügigkeit der Anlage ist von der Strasse her kaum zu erahnen und zeigt sich erst schrittweise. Strassenseitig entsteht ein Vorplatz mit Velounterstand; Eine Treppe führt entlang dem gefliesten Treppenturm zum Garten-Sitzplatz und von dort entlang der bestehenden Stützmauer zum darunter liegenden Swimming Pool mit einem weiteren Aussensitzplatz mit Pergola und zuletzt zur offenen Gartenanlage am Waldrand.

Über eine hochwertige Materialisierung, einer ausgesuchten Möblierung mit diversen Spezialanfertigungen und einem filigranen Farbkonzept wird der passgenaue individuelle Charakter der Räume zusätzlich herausgearbeitet und unterstützt. Die einzelnen Räume unterscheiden sich in ihrem Charakter und schaffen so eine Vielfalt an unterschiedlichen Stimmungen - einen kleinen Kosmos.

  • Montessori Kinderhaus, Riehen

  • Riehen

  • 2022–2023

  • Privat

  • Studie

  • Zukunftsbild Schönthal

  • Frenkendorf, Füllinsdorf und Liestal

  • 2022–

  • Amt für Raumplanung; ARB

  • Studie

  • Neubau Verwaltungs- und Betriebsgebäude Zolli Basel (Aufstockung), Basel

  • Basel

  • 2022–

  • Zolli Basel

  • Studienauftrag 1. Preis; In Ausführung

Projektnummer

310

Ort

Basel

Jahr

2022–

Programm

Büro und Gewerbe, Infrastruktur

Auftraggeber

Zolli Basel

Status

Studienauftrag 1. Preis; In Ausführung

Beteiligte

  • Glaser Baupartner, Basel
  • ZPF Ingenieure

  • Umbau Wohnhaus Austrasse Basel

  • Basel

  • 2022–2023

  • Privat

  • Realisiert

Projektnummer

305

Ort

Basel

Jahr

2022–2023

Programm

Wohnungsbau

Auftraggeber

Privat

Status

Realisiert

  • Umbau und Aufstockung Mehrfamilienhaus Aescherstrasse, Basel

  • Basel

  • 2022–2023

  • Privat

  • Studie

  • Szenographie Nashornhaus, Zolli Basel

  • Basel

  • 2022–2023

  • Zolli Basel

  • Realisiert

Projektnummer

295

Ort

Basel

Jahr

2022–2023

Programm

Ausstellung, Infrastruktur, Kultur und Sport

Auftraggeber

Zolli Basel

Status

Realisiert

Beteiligte

Fotografie

  • Annette Fischer Photography

Das ursprüngliche von den Architekten Wasser & Vadi zusammen mit dem ingenieur Heinz Hossdorf gebaute Nashornhaus ist von Salathé Architekten Basel umgebaut worden. Neben verschiedenen technischen, energetischen und strukturellen Eingriffen wurde der szenographische Weg durch das Gebäude neu gedacht. Zusätzlich schafft ein neu geschaffenes Terrarium für Schildkröten für einen zusätzlichen Anziehungspunkt.

  • Gesamterneuerung Gewerbeschule St. Gallen

  • St. Gallen

  • 2022

  • Stadt St. Gallen

  • Wettbewerb

Projektnummer

313

Ort

St. Gallen

Jahr

2022

Programm

Bildung

Auftraggeber

Stadt St. Gallen

Status

Wettbewerb

Kosten

110'000000.-

Beteiligte

  • In Zusammenarbeit mit op-Arch, Zürich
  • Nipkow Landschaftsarchitektur, Zürich
  • Schnepper Puskas Ingenieure, Basel
  • Walter Dietsche Baumanagement, Chur
  • Stokar + Partner HLK, Basel
  • Proingeneering, Basel
  • Bakus, Zürich

Ausgehend von der heutigen Anlage mit seiner eindrücklichen morphologischen Situation im Terrain schlägt das Projekt Pokora zwei Neubauvolumen vor, welche auf die ortsbauliche Bedeutung des Bestandes und der neuen Turnhalle im vorderen Talbereich eingehen und dieses lose Gefüge in eine räumlich zusammenhängende Anlage überführen. Mit den Erweiterungen wird das Schulhaus mit der Sporthalle verbunden und zu einem «konglomeraten Ganzen» vereint. Wie ein grosses Schiff ankert so das neue Berufs- und Weiterbildungszentrum im grosszügigen Demutstal.

Bestand und Neubaubereich sind organisch ineinander verklammert und fügen sich zu einer offen bespielbaren Landschaft. Die drei Sockelgeschosse und der grosse Dachgarten bieten eine durchlässige Verbindung zu den unterschiedlichen Programmbereichen. Mit der Verlagerung des Haupteingangs entsteht eine innere Strasse, die für eine durchgängige Orientierung innerhalb der Anlage sorgt; sie verbindet Eingangsbereich und Zugang zur Sporthalle und adressiert alle wesentlichen Schulen.

Ein einfaches, effizientes Konstruktionssystem schafft eine modulare Raumstruktur mit grosser Nutzungsflexibilität und ermöglicht durch seine konstruktive Präsenz eine räumliche Dichte, die sich komplementär zum Bestand entwickelt. Die Raumstruktur schafft auch die Voraussetzung für das pädagogische Konzept der Selbstaneignung und der Veränderbarkeit. Wahlweise entstehen offene Lernlandschaften, geschützte Lernzonen oder klassische Klassenzimmer. Einfache Glasfaltwände ermöglichen schnell adaptierbare Raumszenarien und schaffen zusammen mit dem filigran erscheinenden Holztragwerk ein offenes, kommunikatives Raumgefüge mit Werkstattcharakter.

  • Umbau Wohnhaus Tubhusweg, Muttenz

  • Muttenz

  • 2022

  • Privat

  • Realisiert

Projektnummer

306

Ort

Muttenz

Jahr

2022

Programm

Wohnungsbau

Auftraggeber

Privat

Status

Realisiert

Beteiligte

  • mit Bettina Ginsberg, Grimsel

Fotografie

Annnette Fischer / Leon Faust

Salathé Architekten Basel haben für eine private Bauherrschaft das von Oliver Brandenberger 2007 umgebaute und erweiterte Einfamilienhaus saniert und neu interpretiert. In Zusammenarbeit mit Bettina Ginsberg von Grimsel ist ein stimmungsvolles Ganzes entstanden, dass massgeschneidert auf die Bedürfnisse der neuen Besitzer eingeht.

  • Sanierung Javanerfelsen, Zolli Basel

  • Basel

  • 2022

  • Zolli Basel

  • In Planung

Projektnummer

294

Ort

Basel

Jahr

2022

Programm

Ausstellung, Infrastruktur

Auftraggeber

Zolli Basel

Status

In Planung

Salathé Architekten sanieren den Stall der Javaneraffen im Kunstfels im Zoo Basel am Eingang Dorenbach. Der Betonfels wurde 1938 durch Adolf Wendnagel geplant und erbaut, die Stallung im Inneren ist jüngeren Datums. Die aufgrund der hohen Feuchtigkeit schadhaften Bauteile werden ersetzt, die Lüftung von Stall und Felsinnenraum werden optimiert.

  • «Domino» Vom Pflegeheim zum genossenschaftlichen Wohnensemble – Umnutzung eines ehemaligen Pflegeheims in Riehen

  • Riehen

  • 2021–2025

  • Wohnstadt Basel

  • Studienauftrag 1. Preis, realisiert

Projektnummer

291

Ort

Riehen

Jahr

2021–2025

Programm

Wohnungsbau

Auftraggeber

Wohnstadt Basel

Status

Studienauftrag 1. Preis, realisiert

Beteiligte

  • Statik: Schmidt + Partner AG Basel
  • Bauphysik: Gartenmann Engineering AG Basel
  • Landschaft: Albiez de Tomasi GmbH Zürich

Das 1969 erbaute Dominikushaus diente als Pflegheim mit Konventrakt und Kapelle. Nach dem Umzug in einen Neubau 2023 ist auf dem Areal ein genossenschaftliches Wohnprojekt entstanden. Mit dem Erhalt des Hauptbaus, der gezielten Öffnung des Ensembles und einem neuer Quartierplatz ist ein gemeinschaftlicher Wohnort mit drei Häusern entstanden. Ressourcenschonend werden Zellenstrukturen in offene Wohnungen transformiert und Bauteile wiederverwendet. Entstanden sind 39 charaktervolle Wohnungen, vier Reihenhäuser, ein Loft und Gemeinschaftsräume – ein durchmischtes, identitätsstiftendes Projekt mit starker sozialer und ökologischer Haltung.

  • Arealbebauung Spiesshöfli, Binningen

  • Binningen

  • 2021–

  • BLT, Kanton BL, Albert-Lück-Stiftung & Gemeinde Binningen

  • In Planung

Projektnummer

301

Ort

Binningen

Jahr

2021–

Programm

Städtebau, Wohnungsbau

Auftraggeber

BLT, Kanton BL, Albert-Lück-Stiftung & Gemeinde Binningen

Status

In Planung

Beteiligte

Berchtold & Lenzin Landschaftsarchitekten
Stierli & Ruggli, Raumplaner

Mit dem Doppelspurausbau beim Spiesshöfli in Binningen wird ein betrieblicher Engpass auf den vom Leimental in die Stadt behoben. In der Konsequenz entsteht an zentraler, gut erschlossener Lage ein neuer Quartierteil zwischen Hauptstrasse und Birsig.

Die Parzellen werden mit drei, durch Vor- und Rücksprüngen gegliederten, Baukörpern besetzt, die sich zwischen Bottmingerstrasse und Birsig einspannen. Die Wohnbauten werden über den neuen, den Geleisen vorgelagerten Werner Panton Weg erschlossen. Ziel der Bebauung ist es hier ein vielseitiges und differenziertes Wohnangebot zu schaffen. Alle Wohnungen sind durchgängig angelegt und profitieren vom attraktiven Bezug zum renaturierten Flussraum der Birsig.

  • Neubau Dienstleistung- und Gewerbehaus «Volta Nord», Basel

  • Basel

  • 2021–

  • SBB Immobilien

  • Wettbewerb 1. Preis, in Planung

Projektnummer

299

Ort

Basel

Jahr

2021–

Programm

Büro und Gewerbe

Auftraggeber

SBB Immobilien

Status

Wettbewerb 1. Preis, in Planung

Beteiligte

  • Statik: ZPF Structure AG Basel
  • Elektro: Enelco AG Muttenz
  • HLKK: Waldhauser + Hermann AG Basel
  • Sanitär: Schmutz + Partner AG Basel
  • Bauphysik: Gartenmann Engineering Basel
  • Fassade: Marity Ingenieure GmbH Basel
  • Begrünung: Aplantis AG Bern
  • Brandschutz: Peter Deubelbeiss AG Obermumpf
  • Nachhaltigkeit: Amstein + Walthert Basel AG

Fotografie

Visualisierungen Studio David Klemmer

Das Projekt kandalama nimmt die städtebauliche Ausgangslage als Scharnier zwischen Wohnen, Gleispark, Strasse und Industrie vollumfänglich an und schafft einen klaren, aber vielseitig lesbaren Gebäudekörper mit einer bestechend einfachen inneren Organisation. Vier Erschliessungskerne aus Ortsbeton spannen von Fassade zu Fassade und bilden räumlich ausgefeilte Schwellenräume für die vertikale und horizontale Durchwegung. Die Verfasser:innen geben an, dass sie ihren Projektansatz
aus der Unbestimmtheit der zukünftigen Nutzung entwickelt haben und greifen in einer Art Umkehrschluss zurück auf das Bild der Ruine als funktionslosen räumlichen Zustand: «Wir verstehen das fehlende Raumprogramm als Aufforderung das Gebäude als eine Art moderne Ruine zu denken. Wenige Entscheide: eine effiziente Tragstruktur, leistungsfähige Kerne, sowie eine einheitliche und identitätsstiftende Fassade mit Begrünung bestimmen die Architektur des Hauses».

Die benannten «wenigen Entscheide» sind in den Augen der Jury in der Lage, eine sehr produktive architektonische Beziehung und Resonanz mit den angrenzenden Wohnbauten und dem Innenhof aufzubauen. Die Fassaden erzeugen eine an Wohnbauten erinnernde zurückhaltende Vielfältigkeit durch die geschickte Instrumentalisierung von funktionalen Differenzen. Die räumliche Prägnanz der Erschliessungskerne wird ergänzt durch grosse und gut benutzbare Aussenräume für die zukünftigen Benutzerinnen und Benutzer. (Auszug Jurybericht)

  • Das Dorf neu denken – Entwicklungskonzept Kernzone Ziefen

  • Ziefen

  • 2021–

  • Gemeinde Ziefen

  • Studie

Projektnummer

293

Ort

Ziefen

Jahr

2021–

Programm

Kultur und Sport, Städtebau, Wohnungsbau

Auftraggeber

Gemeinde Ziefen

Status

Studie

Beteiligte

Baselbieter Heimatschutz

Ziefen weist heute eine hohe Wohnqualität auf. Die landschaftliche Einbettung und der historische Kern schaffen eine hohe Identität, trotzdem ist dem Dorf die Mitte abhanden gekommen. Die Enge der Hauptstrasse steht im Konflikt mit den denkmalgeschützten Bauten. Die ehemalige Lebensader droht einzufrieren; das Leben findet anderswo statt.

Wir schlagen für die Entwicklung von Ziefen eine Palette von unterschiedlichen Eingriffen vor, die aus einem Verständnis für den Bestand entwickelt sind und den Ort als Ganzes begreift. Der Bach wird neu als durchgrünte Mitte; als durchgehender öffentlicher Raum verstanden und soll aufgewertet werden. Die Hauptstrasse wird pragmatisch angepasst und soll möglichst ‘ent- schleunigt’ werden; alternativ soll das, teils bestehende geflechtartige Wegsystem aufgewertet, ergänzt und sichtbar gemacht werden. Das gemeindeeigene Werkhofareal wird als zentraler Bereich, als eine Art Dorfplatz aufgewertet und mit neuen Nutzungen verdichtet.
Alle Massnahmen bedingen sich gegenseitig und müssen gemeinsam entwickelt werden. Nur mit einem zusammenhängenden System kann es gelingen das Dorf als Ganzes zu denken.

  • Städtebauliche Studie Museum Augusta Raurica

  • Augst

  • 2021–2022

  • Römerstadt, Hochbauamt Basellandschaft

  • Studie

  • Neubau Musikschule und Sporthalle Rombach

  • Rombach

  • 2021

  • Gemeinde Rombach

  • Wettbewerb

  • Umbau Druckereigebäude Blauenstrasse, Basel

  • Basel

  • 2021

  • Schwarz AG

  • Realisiert

Projektnummer

300

Ort

Basel

Jahr

2021

Programm

Büro und Gewerbe

Auftraggeber

Schwarz AG

Status

Realisiert

Beteiligte

mit Bettina Ginsberg, Grimsel

Fotografie

Annette Fischer

Das Gebäude an der Blauenstrasse hat eine interessante Nutzungsgeschichte. Das 1897 ursprünglich als Vereinslokal mit Wohnungen und Flickstube erbaute Ensemble bestand ursprünglich aus zwei Gebäuden – einem dreigeschossigen Wohnhaus und einem zweigeschossigen Saal mit Giebeldach, welcher über einen mit Kastanien besetzten Platz erschlossen wurde. 1950 ist das Ensemble an die Firma E. Schwarz verkauft worden und zu einem Wohnhaus und einem Druckereigebäude mit Büroräumen umgebaut worden. Der Saal wurde aufgestockt und erweitert, der Platz vor dem Gebäude sowie das Wohnhaus sind mit Neubauten ersetzt worden.

Das ehemalige Regallager im überhohen Erdgeschoss wurde neu halbseitig für den Einbau von Arbeitsplätzen demontiert. Somit ist die ursprüngliche Dimension des Vereinssaals wieder lesbar. Zur fensterlosen Rückseite entstand eine Galerie, auf welcher nun Archivräume untergebracht sind; darunter, abgetrennt mit grossen Schiebetoren sind Infrastruktur- und Lagerbereich angeordnet. Der Hauptraum wird durch zwei Möbel geprägt. Ein übergrosser Tisch schafft acht feste Arbeitsplätze; ergänzend bietet ein Stehkorpus Raum für Besprechungen.

Alle Materialien wurden möglichst belassen. Die Bretter des ehemaligen Lagers wurden als Verkleidung und für Einbaumöbel wiederverwendet. Die beiden freistehenden Möbel kontrastieren in ihrer Präzision den industriellen Charakter des Raumes. Der spiegelnde grünblaue Giessharzbelag reflektiert das Tageslicht und vergrössert optisch den Raum. Eine verglaste Schiebtüre ermöglicht eine Abtrennung des Arbeitsraumes zum Eingangsbereich.

  • Umbau Wohnhaus Salinenstrasse, Basel

  • Basel

  • 2021

  • Privat

  • Realisiert

Projektnummer

292

Ort

Basel

Jahr

2021

Programm

Wohnungsbau

Auftraggeber

Privat

Status

Realisiert

Fotografie

Annette Fischer

Das städtische Wohnhaus an der Salinenstrasse ist ein dreigeschossiger Massivbau und wurde im Jahr 1933 fertiggestellt. Der feine Dachrand und präzis gesetzte Öffnungen definieren die äussere Erscheinung des Wohnhauses. Unverkennbar ist der Zeitgeist der Moderne in der architektonischen Ausgestaltung präsent. Der Freiraum ist durch unterschiedliche Oberflächen und Niveaus klar gegliedert und schafft eine Verbindung zum Innenraum. Die typologische Struktur basiert auf dem Modell vom Basler Grundriss. Neben der Serviceschicht mit Treppenhaus reihen sich im Erdgeschoss zwei grosszügige Wohnräume aneinander, welche dreiseitig Bezug zum Aussenraum haben und ein grosszügiges Durchwohnen ermöglichen.

Der Umbau des Erdgeschosses adaptiert den Bestand auf behutsame Art und Weise. Küche und Wohnraum werden mit einer grossen Öffnung verbunden und wird so den Lebensgewohnheiten der vierköpfigen Familie angepasst. Gleichzeit bleibt die räumliche Struktur bestehen. Neu verbindet ein durchgehender, mineralischer Bodenbelag Eingangsbereich, Treppenhaus und Küche. Die helle geschliffene Zementoberfläche schafft den Übergang vom Aussen- zum Innenraum und kontrastiert die Schwelle zum Wohnraum mit Eichenparkett. Die neue Küche ist als eingesetztes Möbel so konzipiert, dass die Rückwand freigespielt wird und so eine räumliche Grosszügigkeit entsteht. Dabei wird die originale Materialisierung und Farbigkeit aufgenommen und durch zurückhaltende neue Oberflächen ergänzt. Es entsteht ein feines Zusammenspiel zwischen alten und neuen Materialien, das die atmosphärischen und räumlichen Qualitäten des Hauses unterstreichen.

  • Neubau Primarschule Walkeweg, Basel

  • Basel

  • 2021

  • Bau- und Verkehrsdepartement des Kantons Basel-Stadt

  • Offener Ideenwettbewerb

  • Städtebauliche Studie Bethesda Areal Basel

  • Basel

  • 2021

  • Stiftung Diakonat Bethesda

  • Städtebauliche Studie

  • Neubau Heulager Zoo Basel, Basel

  • Basel

  • 2021

  • Zoologischer Garten Basel AG

  • Realisiert

Projektnummer

278

Ort

Basel

Jahr

2021

Programm

Infrastruktur

Auftraggeber

Zoologischer Garten Basel AG

Status

Realisiert

Beteiligte

Schlosserei Erlenhof, Reinach

Fotografie

Annette Fischer

Im Rahmen der Sanierungsarbeiten für das Antilopenhaus galt es, die organisatorischen Abläufe rund um das bestehende Haus neu zu organisieren. Das neue Heulager dient der Zwischenlagerung. Architektonisch setzt sich der einfache Zweckbau aus Stahl vom historischen Haus ab, orientiert sich aber konstruktiv an den bestehenden Gittern im Umfeld. Mit dem bemoosten Dach und den aus Weidenästen geflochtenen Wänden fügt sich der Zweckbau camouflageartig in die Vegetation um den Hauptbau ein.

  • Umbau und Sanierung Mehrfamilienhaus Oberwilerstrasse -vom Wohnhaus zur Energiezentrale, Basel

  • Basel

  • 2020–2022

  • Zoologischer Garten Basel

  • Studienauftrag 1. Preis, Realisiert

Projektnummer

279

Ort

Basel

Jahr

2020–2022

Programm

Wohnungsbau

Auftraggeber

Zoologischer Garten Basel

Status

Studienauftrag 1. Preis, Realisiert

Beteiligte

  • Bauleitung: Glaser Baupartner GmbH Basel
  • Statik: Schmidt + Partner AG
  • Fassade: Christoph Etter Fassadenplanungen Basel
  • PV-Analge: Energiebüro AG Zürich
  • Bauphysik: Gartenmann Engineering AG Basel

Fotografie

Roman Weyeneth

Auszeichnungen

  • Energiepreis 2022 Ökogemeinde Binningen
  • Bau des Monats, FEB Januar 2023
  • Best architect 25

Ausdruck und Proportionen des Mehrfamilienhauses von Schachenmann und Berger Architekten aus den 60er Jahren sollen bei der Fassadensanierung beibehalten werden. Als verputzter Baukörper wurde das Gebäude als Teil des Quartiers gelesen. Neu soll das Gebäude als sichtbarer Teil des Zollis verstanden werden und das Bemühen um eine nachhaltige Entwicklung zeigen.

Mit der neuen dunkelgrünen PV Fassade (Zolligrün) wird das Haus zur sichtbaren Energiezentrale des Zoos. Die fein strukturierte Oberfläche der Glaspaneele bricht die Reflexion der Umgebung und gibt dem Haus in Kombination mit den geölten Holzrolläden einen sanften und wohnlichen Ausdruck. In nur zwei verschiedenen Formaten, mit entsprechender Fugeneinteilung und minimaler Anpassung der Fensterformate werden die PV-Paneele der isolierten Fassade vorgehängt. Nach Aussen geneigte Paneele überdecken die Mechanik der Holzrolläden und lassen die Fassade als leichtes Gewand wirken.

Zum Garten werden die Balkone der Wohnungen mit auskragenden Holzbauplatten vergrössert und bestimmen mit der Holzverkleidung aus vorvergrauter Lärche die Erscheinung des Gebäudes.

  • Umbau Reihenhaus Schoellenenstrasse

  • Basel

  • 2020–2021

  • Privat

  • Realisiert

Projektnummer

281

Ort

Basel

Jahr

2020–2021

Programm

Wohnungsbau

Auftraggeber

Privat

Status

Realisiert

Fotografie

Annette Fischer

Das schmale, einfache Reihenhaus aus den vierziger Jahren ist im Laufe der Zeit mehrfach umgebaut worden. Mit dem Umbau für eine Familie ist das dreigeschossige Haus nun zeitgemässen Bedürfnissen angepasst worden. Mit einem knappen Budget ausgestattet, ging es darum so wenig wie möglich und so viel wie nötig zu machen. Neben den wesentlichen technischen Erneuerungen galt es der engen Wohnsituation zu einer gewissen Grosszügigkeit zu verhelfen. Entsprechend ist das Eingangsgeschoss neu als offene Raumfolge angelegt. Küche, Essbereich und Wohnraum verbinden sich zu einer Gesamtfigur, die die ganze Tiefe nutzt und sich zum Garten mit einer grosszügigen Falttüre öffnet. In den Obergeschossen wird die Hausdimension mit überhohen Türen erleb- und spürbar.

Prägend für den Bestand sind, neben der Holzbalkendecke, verschiedene keramikbelegte Wandflächen, sowie der terrazzoähnliche Natursteinboden des Erdgeschosses. Der Umbau sieht vor, diese spezifische Materialität «as found» zu belassen und atmosphärisch zu ergänzen. Die glänzend gestrichene Holzdecke; der neue Zementboden der den Terrazzo wie eine Intarsie fasst und die überstrichenen Keramikflächen binden das Haus zu einem Ganzen. Die möbelartige Küche aus bakelisiertem Sperrholz zoniert das Erdgeschoss und verstärkt die charaktervolle Gesamtwirkung.

  • Neubau Wohnüberbauung «Bachmatt» Windisch

  • Windisch AG

  • 2020–

  • Brugg Immobilien AG

  • Wettbewerb 1. Preis; In Planung

Projektnummer

272

Ort

Windisch AG

Jahr

2020–

Programm

Wohnungsbau

Auftraggeber

Brugg Immobilien AG

Status

Wettbewerb 1. Preis; In Planung

Beteiligte

Studio Céline Baumann, Basel (Landschaftsarchitektin)

Als Alternative zum konventionellen «Wohnen im Einfamilienhaus» entwickelt das Projekt mir vier unterschiedlichen Baukörpern eine eigenständige Wohnsiedlung vor, die eine grosse Vielfalt unterschiedlicher Wohnformen zulässt. Das «Miteinander» der künftigen Bewohner/-innen wird ins Zentrum gestellt, indem die vier Gebäude «Aldo», «Giancarlo», «Jaap» und «Alison» um einen zentralen, alle Wohnungen erschliessenden Innenhof gruppiert sind. MIt der gewählten Typologie, der feinen Körnigkeit und. der sorgfältg gestaltete Höhenstaffelung wird eine gelungene Einbettung in das Quartier erreicht. Die Aussenraumstruktur schafft auf natürliche Weise eine gute Vernetzung mit der angrenzenden Umgebung.

  • Umbau und Umnutzung einer ehemaligen Aromafabrik auf dem Dreispitz, Basel

  • Basel

  • 2020

  • CMS

  • Studie

Projektnummer

285

Ort

Basel

Jahr

2020

Programm

Ausstellung, Kultur und Sport

Auftraggeber

CMS

Status

Studie

Die ehemalige Aromafabrik auf dem Dreispitzareal besteht aus einem Konglomerat von unterschiedlichen Gebäudeteilen. In Zusammenarbeit mit der Künstlerin Sandra Knecht wurde untersucht, ob das Haus räumlich und konstruktiv für eine Manufaktur für Esswaren mit Degustationsraum und als Ort für kulturelle Veranstaltungen genutzt werden könnte. Zentrales Anliegen war es den interessanten Charakter des Gebäudes zu erhalten und einen angemessenen Umgang mit der teils fragilen Bausubstanz zu finden. Insbesondere galt es abzuwägen inwiefern ein entsprechender Umbau bewilligungsfähig ist und ob dieser innerhalb eines gegebenen Budgets umsetzbar ist.

Die Studie kommt zum Schluss, dass ein zurückhaltender Umgang mit der bestehenden Bausubstanz durchaus möglich ist und zu interessanten räumlichen Qualitäten führen kann. Allerdings stellt sich Frage der Pemanenz der angedachten Nutzung und stellt somit die Verhältnismässigkeit der Eingriffe in Frage. Nach Prüfung durch die Bauherrschaft, ist das Projekt nicht weiter entwickelt worden.

  • Erweiterung Schulanlage Widen

  • Widen

  • 2020

  • Gemeinde Widen AG

  • Wettbewerb 2. Preis

Projektnummer

284

Ort

Widen

Jahr

2020

Programm

Bildung, Kultur und Sport

Auftraggeber

Gemeinde Widen AG

Status

Wettbewerb 2. Preis

Beteiligte

  • In Zusammenarbeit mit Tommy Neuenschwander und Guilherme Pires
  • Landschaft: Albiez de Tomasi GmbH Zürich
  • Statik: ZPF Ingenieure AG Basel
  • Energie: Waldhauser + Hermann AG Basel

the good, the ugly and the queen

Plötzlich diese Übersicht… Mit den geplanten Neubauten, wird das Schulhausareal von Widen räumlich geklärt. Die Setzung der Bauten entlang der Nord-Süd orientierten Querung des Areals schafft eine klare Hierarchie und fasst die bestehenden, topographischen Ebenen auf selbstverständliche Art und Weise zusammen. Der heutige Schulhausplatz wird zur neuen offenen Mitte, auf dass sich Mehrzweckhalle, die bestehenden Schulbauten sowie das neue Schulhaus mit der Tagesstruktur orientieren. Um diese Setzung der Baukörper organisieren sich eine Vielzahl von unterschiedlich nutzbaren Aussenräumen, die sich zu einer durchlässigen und grosszügigen Gesamtanlage fügen, die mit der bestehenden Siedlungsstruktur verschränkt.

  • Umbau Mehrfamilienhaus Birsigstrasse

  • Basel

  • 2020

  • UBS Fund Management

  • Studie

  • Umgestaltung Informationsstelle Murus Gallicus

  • Basel

  • 2020

  • Hochbauamt Basel-Stadt

  • Wettbewerb

  • Umbau Hochbergerstrasse 158

  • Basel

  • 2020

  • Hochbauamt Basel-Stadt

  • Offener Wettbewerb, 3. Preis

Projektnummer

276

Ort

Basel

Jahr

2020

Programm

Wohnungsbau

Auftraggeber

Hochbauamt Basel-Stadt

Status

Offener Wettbewerb, 3. Preis

Beteiligte

  • Statik: ZPF Ingenieure AG Basel
  • Bauökologie: Amstein + Walthert AG Basel
  • Lärmschutz: Gartenmann Engineering AG Basel
  • Photovoltaik: Energiebüro AG Zürich

LE VENT NOUR PORTERA - Im offenen Projektwettbewerb für den Umbau der ehemaligen Rheinschifffahrtsdirektion wird unser Projekt «Le vent nous portera...» aus 121 Eingaben mit dem 3. Preis gewürdigt. Das Projekt schlägt einen bewussten Umgang mit dem strukturell geprägten Bestandsbau vor und nimmt die Ambition der Auslober, nachhaltige und kostengünstige Wohnungen zu erstellen ernst. Die loftartigen, einseitig orientierten Wohnungen können über den Gang mit Ateliers erweitert werden. Der grosse Gemeinschaftsraum im Erdgeschoss verbindet Strasse und Hof und verschafft dem Gebäude eine neue Adresse zur Strasse. Im architektonischen Ausdruck nimmt sich das Gebäude zu Gunsten der ganzen Zeile zurück.

Im Übergang zur strukturell geprägten Hafenbebauung ist das ehemalige Verwaltungsgebäude der Schweizerischen Reederei Anlass über Wohnen und neue Formen von Gemeinschaft in der Stadt nachzudenken. Die trockene Sachlichkeit des Gebäudes und seine prägnante Position zwischen Lagerhalle und Wiesenraum beeinflussen in der Folge die Qualitäten der angestrebten Neunutzung.

Ausgehend vom Bestand und dem Vorsatz möglichst minimal in den Rohbau einzugreifen werden die Wohnungen aus der Logik der bestehenden Struktur entwickelt. Die prägende räumliche Schichtung charakterisiert das Wohnen an diesem Ort. Nach Süden, zum weiten Ausblick in den Himmel und zur Wiese liegen die Wohnungen – zum Hof fasst eine schmale Schicht eine Reihe von Arbeitsräumen zusammen. Die der bestehenden Treppe direkt angebundene Erschliessung wird über die nördlichen Arbeitsräume belichtet, sie wird zu einer kleinen Strasse mit unterschiedlichen Adressen. Mit der Mischung von Wohnen und Arbeiten auf dem Regelgeschoss wird bewusst das Miteinander beider Nutzungen gesucht. Die einseitige Südorientierung der Wohnungen entlastet dabei die enge Hofsituation und ermöglicht eine intensive Nutzung des Hofraums rund um die Uhr. Die Gemeinschaft findet im grosszügigen Erdgeschoss mit Verbindung zum Hof statt und bietet reichhaltige Nutzungsmöglichkeiten und eine gute Vernetzung des Hauses mit dem Quartier.

  • Sanierung Antilopenhaus Zoo Basel

  • Basel

  • 2020

  • Zoologischer Garten Basel AG

  • Realisiert

Projektnummer

275

Ort

Basel

Jahr

2020

Programm

Kultur und Sport

Auftraggeber

Zoologischer Garten Basel AG

Status

Realisiert

Kosten

1 500 000.- CHF

Beteiligte

  • Statik: Schmidt + Partner Ingenieure AG Basel
  • Elektroplanung: Cadosch + Niederer AG Basel
  • HLK-Planung: HeiVi AG Basel
  • Sanitärplanung: Sanplan AG Lausen
  • Restauratorin: ArKoJ Mirjam Jullien Basel

Fotografie

Annette Fischer

Das Antilopenhaus - ein imposanter Zentralbau im neuklassizistischen Stil von Fritz Stehlin, 1909 erbaut - ist das bedeutendste Gebäude aus der frühen Zeit des Zoos. Es ist von grossem architektonischem Wert und beeindruckt durch seine überzeugende Raumwirkung und die sorgfältige Detailgestaltung. Zudem repräsentiert es in idealtypischer Weise die Typologie der Zooarchitektur im 19. und bis zur Mitte des 20 Jahrhunderts. Der Anbau für die Giraffen aus Metall und Glas wurde 1951 errichtet. 1995 erfolgte dann die Sanierung des Hauptgebäudes.

Nur wenige bauliche Zeugnisse der verschiedenen Entwicklungsetappen der Zooarchitektur sind bis in die heutige Zeit erhalten geblieben. Die nun abgeschlossenen Sanierungsarbeiten konzentrieren sich auf Massnahmen, die entweder direkt eine Verbesserung der Tierhaltung oder aber der Arbeitsbedingungen der Tierpfleger bewirken. Dabei war insbesondere die massive Geruchsbelastung für Pfleger und Besucher ein zentraler Grund der Sanierung. Alle Eingriffe sind darauf bedacht das denkmalgeschützte Haus energetisch und betrieblich vorsichtig und angemessen zu optimieren.

Die wichtigsten Massnahmen der Sanierung sind neben der energetischen Sanierung, der Einbau der Lüftungsanlage, der Einbau des Gussasphaltes im Tierbereich, die Renovation aller Oberflächen im Innern, die Sanierung der haustechnischen Installationen und der Kanalisation.

  • Umbau und Rekonstruktion, Rheinhof Basel

  • Basel

  • 2020

  • Edith Maryon Stiftung

  • Studienauftrag 1. Preis, In Planung

Projektnummer

274

Ort

Basel

Jahr

2020

Programm

Kultur und Sport, Wohnungsbau

Auftraggeber

Edith Maryon Stiftung

Status

Studienauftrag 1. Preis, In Planung

Im Sommer 2019 ist der Rheinhof einem Brand zum Opfer gefallen. Für das denkmalgeschützte Ensemble wurde in der Folge mit einem Studienauftrag ein Projekt für den Wiederaufbau der Liegenschaft Rheingasse 17 gesucht.

Zusammen mit dem Hotel Krafft und dem Consum entsteht hiermit die Möglichkeit einen strategisch wichtigen Strassenabschnitt im Kleinbasel umfassend zu prägen. Anders als in der übrigen Gasse bilden hier die modernen oder die durch Zusammenlegung mehrerer älterer Parzellen im 19. Jahrhundert entstandenen, grossen Gasthöfe einen städtischen Bereich aus. Mit dem Wiederaufbau und der Neuprogrammierung des Rheinhofs soll es nun gelingen, ein weiteres Puzzleteil dieser historisch wertvollen Struktur in eine neue Zukunft zu überführen.

Grundlage für die Neuorganisation ist der Bestand, der wesentlich durch die morphologische Struktur des Grundrisses geprägt ist. Die Dreigliedrigkeit des Hauses, das auf die historische Kleinteiligkeit verweist, bleibt in den Grundrissen spür- und lesbar. Eine Durchbrechung der historisch wichtigen Mauern muss nur an wenigen Stellen verhandelt werden. Über einen neuen Zugang im Schafsgässlein gelingt es unterschiedliche Bespielungen zu ermöglichen. Der neuangelegte Treppeneinbau mit einem zentralen Lift gewährleistet eine attraktive und behindertengerechte Erschliessung fast aller Räume. Für das Wohnen und die kulturellen Nutzungen entsteht so ein heller Wohn- und Veranstaltungshof, der ganz im Sinn der Beschreibungen von Hermann Hesse, Begegnungsort und Zugang ist. Dieser offene Erschliessungsraum ist laubenartig ausgebildet und schafft ein räumliches Zusammengehörigkeitsgefühl und klare Adressen. Durch die innenliegenden Fenster der Wohnräume zum Hof hin, entstehen Nachbarschaften und hoffentlich nach und nach eine kleine Gemeinschaft. Der Hof kann, je nach Situation sowohl in Verbindung mit der Gastronomie, wie auch unabhängig über den Zugang Schafsgässlein genutzt werden.

«Haller sah mich an und ich merkte, dass ich ihn aus einer Art Traumzustand geweckt hatte. Langsam begann er zu lächeln, sein hübsches und jämmerliches Lächeln. Mit dem er mir so oft das Herz schwer gemacht hat, dann lud er mich ein, mich bei ihm zu setzen. Ich dankte und sagte, ich sei nicht gewohnt, auf der Treppe vor anderer Leute Wohnungen zu sitzen. «Ach ja», sagte er und lächelte stärker, «Sie haben recht. Aber warten Sie noch einen Augenblick, ich muss Ihnen doch zeigen, warum ich hier ein wenig sitzen bleiben musste.» Dabei deutete er auf den Vorplatz der Wohnung im ersten Stock, wo eine Witwe wohnte. Auf dem kleinen, parkettbelegten Platz zwischen Treppe, Fenster und Glastüre stand ein hoher Mahagonischrank an der Wand, mit altem Zinn darauf, und vor dem Schrank am Boden standen, auf zwei kleinen, niedern Ständerchen, zwei Pflanzen in grossen Töpfen, eine Azalee und eine Araukarie. Die Pflanzen sahen hübsch aus und waren immer sehr sauber und tadellos gehalten, das war auch mir schon angenehm aufgefallen. Sehen Sie, fuhr Haller fort, «dieser kleine Vorplatz mit der Aurakarie, der riecht so fabelhaft, ich kann hier oft gar nicht vorbei gehen, ohne eine Weile haltzumachen.»

Hermann Hesse, Steppenwolf

  • Verdichtungsstudie Areal Gellertfeld

  • Basel

  • 2020

  • CMS

  • Studie

  • Wohnüberbauung Lüdinareal

  • Liestal BL

  • 2020

  • SIAT IMMOBILIEN AG - Credit Suisse AG

  • Wettbewerb 2. Preis

Projektnummer

246

Ort

Liestal BL

Jahr

2020

Programm

Kultur und Sport, Wohnungsbau

Auftraggeber

SIAT IMMOBILIEN AG - Credit Suisse AG

Status

Wettbewerb 2. Preis

Beteiligte

  • Landschaft: Westpol Landschaftarchitektur GmbH Basel
  • Energie: HeiVi AG Basel

Die Neubebauung des Areals an prominenter, gut erschlossener Lage eröffnet die Chance an dieser Stelle ein durchlässiges Ganzes zu schaffen, das sich einerseits mit seiner Nachbarschaft verbindet und sich andererseits als eigenständiges Stück Stadt; als zeitgemässes «Vorstadtquartier» versteht. In unmittelbarer Nähe zum Bahnhof und zur Altstadt entsteht so ein differenzierter und identitätsstiftender Ort, der auf begrenztem Raum sehr unterschiedliche Wohnformen und -situationen anbietet.

An der Schnittstelle zwischen der repräsentativen Bebauung des Bahnhofareals, der kleinteiligen Morphologie der Wohnbauten im Stadtkern und den grossmassstäblichen Bauten im Vorstadtquartier gebührt dem Lüdin-Areal eine Schlüsselposition. Eine sinnvolle Bebauung des Areals kann sowohl topographische, wie auch räumliche Verbindungen schaffen und an einer brüchigen Stelle des Stadtkörpers wichtige Verbindungen stärken. Mit einer vielgestaltigen und eigenständigen Architektur können unterschiedliche Raumsituationen entwickelt werden, die an gut erschlossener Zentrumslage einen hohen Wohnwert aufweisen. Ein neues Quartier entsteht.

Ausgangspunkt und Verankerung der städtebaulichen Komposition ist das Ensemble der ehemaligen Lüdin AG, sowie die geplante Erweiterung des Kantonsgerichts mit dem vorgelagerten Freiraum. Zwischen diesen beiden räumlich prägnanten Bereichen, werden auf der Grundlage der übergeordneten städtebaulichen Prinzipien unterschiedliche Baubereiche entwickelt, die sich zu einer vielseitigen städtischen Wohnwelt verbinden. Wir sehen hier ein Miteinander von sehr unterschiedlichen Qualitäten und stellen uns das neue Quartier als urbane Wohnwelt vor, die dem Ort Dichte und Lebendigkeit verleiht.

  • Neubau Turmhaus Vivo, Aesch

  • Aesch

  • 2019–22

  • Halter AG

  • Planung bis und mit Phase 33

Projektnummer

232

Ort

Aesch

Jahr

2019–22

Programm

Büro und Gewerbe, Städtebau, Wohnungsbau

Auftraggeber

Halter AG

Status

Planung bis und mit Phase 33

In der Folge eines Varianzverfahrens und der Entwicklung des städtebaulichen Richtprojektes als Grundlage für den Quartierplan Victus; haben Salathé Architekten das Projekt
für das prägnante Turmgebäude am Eingang von Aesch architektonisch entwickelt und konstruktiv ausgearbeitet. Auf der Parzelle 3979 am Eingang von Aesch entsteht eine Arealüberbauung mit vier unterschiedlichen und typologisch differenzierten Baukörpern: Turm - Hof - Scheibe und Kamm. Sie umfassen einen offenen Hofraum. Salathé Architekten Basel sind für die städtebauliche Gesamtkonzeption des Ensembles und den Neubau des zwölfgeschossigen Turmgebäudes an der nordwestlichen Ecke des Areals mandatiert.

Über dem durchlässigen, dreigeschossigen Co-Workingbereich, sind auf zwei Geschossen Longstay-appartements vorgesehen. Die Wohntypologie der oberen Wohngeschosse reagiert auf die fast umseitige Lärmbelastung und wird über einen offenen Innenhof erschlossen. Die kleinräumigen Wohnungen profitieren von der Weitsicht am Siedlungsrand und teilen sich den offenen Erschliessungsraum. Der polygonale, mineralisch ausgebildete Baukörper mit seiner prägnanten vertikalen Fassadenstruktur wird zur präzis gesetzten Landmark am Eingang von Aesch.

*Auf Grund von inhaltlichen und qualitativen Differenzen sind Salathé Architekten Basel nach dem Bauprojekt und der erfolgreichen Baubewilligung aus der weiteren Planung ausgestiegen.

  • Neubau Hofackerstrasse Muttenz

  • Muttenz

  • 2019

  • Gemeinde Muttenz, Kanton Basel-Landschaft, Privat

  • Wettbewerb (Bieterverfahren)

Projektnummer

273

Ort

Muttenz

Jahr

2019

Programm

Städtebau, Wohnungsbau

Auftraggeber

Gemeinde Muttenz, Kanton Basel-Landschaft, Privat

Status

Wettbewerb (Bieterverfahren)

Beteiligte

  • mit Tommy Neuenschwander, Architekt
  • Landschaft: Bryum Gmbh Basel
  • Haustechnik: Waldhauser+Hermann AG Basel
  • Investor: Mettler2invest

Fotografie

David Klemmer Zürich

Wissen – Wohnen – Arbeiten. Die Bebauung konkretisiert die Vision der nachhaltigen städtebaulichen, wirtschaftlichen, ökologischen und funktionalen Aufwertung des Polyfelds. Der Masterplan Polyfeld will auf dem ganzen Areal ein durchlässiges und offenes Freiraumsystem etablieren.

Wir sehen hier ein grosses Haus, in dem unterschiedliche Wohn-und Arbeitsformen möglich sind. Kleinwohnungen, Atelierwohnungen und Wohngemeinschaften für Studierende sind Teil zu einer urbanen Wohnwelt, die dem Ort Dichte und Lebendigkeit verleihen. Ergänzt und erweitert werden die Wohnungen mit einem differenzierten Angebot an Erdgeschossnutzungen: Flexible Strukturen für Wohnen und Arbeiten, Platz für Startups, offene Seminarräume für die benachbarten Hochschulen, einzelne Verkaufsgeschäfte, ausgesuchte Restaurationsbetriebe und eine Kinderkrippe beleben den Ort.

  • Umbau und Sanierung Alterssiedlung Landpfrundhaus Riehen

  • Riehen

  • 2019

  • Landpfrundhaus Alterssiedlungen Riehen Bettingen

  • Offener Wettbewerb

Projektnummer

268

Ort

Riehen

Jahr

2019

Programm

Wohnungsbau

Auftraggeber

Landpfrundhaus Alterssiedlungen Riehen Bettingen

Status

Offener Wettbewerb

Beteiligte

  • Landschaft: Albiez de Tomasi GmbH Zürich
  • Lärmschutz: Gartenmann Engineering AG Basel
  • Brandschutz: Visiotec Allschwil

Alles ist Umbau! Die geplanten Eingriffe sollen das bestehende Pfrundshaus in angemessenem Rahmen aufwerten und ein neues selbstverständliches Ganzes schaffen.

Wir empfinden den Bestandesbau als architektonisch wertvoll; seine soziale Funktion ist wichtig. Die Situation mit dem Weitblick auf das Schulareal und die zwar enge, aber wohnliche Gartenseite bieten ein interessantes Wohnumfeld. Das Konzept des Pfrundhauses mit dem Angebot an gemeinschaftlichen Räumen ermöglicht ein interessantes Miteinander zwischen Privatheit und Gemeinsamkeit. Mit dem Projekt möchten wir dieses Gleichgewicht weiter entwickeln. Wir schlagen deshalb vor, den bestehenden Erschliessungsbereich zu belassen und ihn punktuell aufzuwerten. Die Laubengänge werden räumlich aufgewertet zu Orten der Begegnung. Mit der spezifischen Aufwertung des Eingangsbereiches im Erdgeschoss und dem Ausbilden von feinen Schwellenräumen; sowie einer differenzierten und naturnahen Bepflanzung entsteht eine moderne und zeitgemässe Wohnlandschaft in hoher Qualität.

  • Erweiterung Sekundarschule, Courrendlin

  • Courrendlin JU

  • 2019

  • Commune de Courrendlin

  • Offener Wettbewerb

Projektnummer

266

Ort

Courrendlin JU

Jahr

2019

Programm

Bildung

Auftraggeber

Commune de Courrendlin

Status

Offener Wettbewerb

Beteiligte

  • Landschaft: Studio Céline Baumann, Ingenieur: Schmidt und Partner,
  • Bauingenieure: AG, HLK: HeiVi AG,

Die bestehende, zwischen Birs und Kantonstrasse gelegene Schulanlage in der jurassischen Gemeinde Courrendlin zeichnet sich durch eine grosse landschaftlich geprägte Durchlässigkeit und einen sehr heterogenen Baubestand aus. Das Projekt für die neuen Schulräume der Sekundarschule und einen Kindergarten sieht vor die bestehende Anlage zu einer raumfassenden Gesamtfigur zu ergänzen.

Der zugunsten des historischen Schulgebäudes etwas zurückgesetzte Neubau artikuliert die städtebauliche Gesamtsituation und wird zur neuen Hauptadresse der Sekundarschule. Die räumliche Organisation ist einfach und übersichtlich und verbindet die unterschiedlichen Teile zu einem konglomeraten Ganzen. Der offene Hofraum verbindet sich mit der Auenlandschaft des nahen Flusses. Zur Birs hin sind Kindergarten und Mittagstisch in einem kompakten, zweigeschossigen Körper untergebracht. Erschlossen über den Pausenplatz der Schule, orientiert sich das Gebäude zum birsseitigen Garten und ist gleichzeitig Teil des Ganzen.

  • Neubau und Erweiterung Christoph-Merian-Schule

  • Basel

  • 2019

  • Bau- und Verkehrsdepartement des Kanton Basel-Stadt

  • Offener Wettbewerb 4. Preis

Projektnummer

262

Ort

Basel

Jahr

2019

Programm

Bildung, Kultur und Sport

Auftraggeber

Bau- und Verkehrsdepartement des Kanton Basel-Stadt

Status

Offener Wettbewerb 4. Preis

Beteiligte

  • Generalplaner: Dietziker Partner Baumanagement AG
  • Ingenieur: Schmidt und Partner
  • Bauingenieure: AGElektro, Edeco AG
  • HLK: HeiVi AG
  • Sanitär: Sanplan AG
  • Bauphysik: Gartenmann Engineering AG
  • Brandschutz: Visiotec AG
  • Fassadenplaner: Christoph Etter

Der Entwurf sieht vor, die zusätzlich benötigten Flächen aufzustocken und anzubauen und entwickelt den Bestandsbau so zu einem raumfassenden Volumen, das sich mit seinem unmittelbaren Kontext verbindet und klare Bezüge schafft. Das neue Haus wird zum «sowohl als auch» und betont in seiner klar artikulierten Volumetrie sowohl den zentralen Ost-West orientierten Freiraum, wie auch seine Verbindung mit den Bauten der Gellertschule. Einerseits wird so das in Nord-Südrichtung angelegte Nutzungsband aus Schulgebäuden räumlich stärker miteinander verbunden; die Erlebbarkeit der Schule als zusammenhängender Organismus wird gestärkt. Andererseits schafft der neu angebaute Gemeinschaftsbereich, mit der Aula und dem Lehrerbereich eine klare Zonierung des grossen Freiraumes, die die Nutzungsmöglichkeiten der Anlage erweitert, aber auch dem zentralen Platz mit der reformierten Kirche genügend Raum lässt und zur neuen Adresse an der Emanuel Bücheli-Strasse wird.

Durch die Artikulierung des Gebäudes werden klare Zuordnungen gemacht. Die Sportmatte wird als gefasster Grünraum bis an die Aula geführt. Strassenseitig entsteht ein Schulhausplatz, der sich zwischen Schulhauseingang und dem baumbestandenen; gartenartigen Vorbereich des Singsaals aufspannt. Ergänzt wird diese vielfältige Welt mit dem bestehenden Pausenplatz im Süden des Gebäudes, der seinen spezifischen Charakter beibehalten soll. Architektonisch sucht das Gebäude einen abstrakten Bezug zu den Bestandsbauten der Gellertschule. Die Kleinteiligkeit der gefalteten Dachlandschaft einerseits, aber auch die Tektonik der Fassade mit den vorgestellten rahmenartigen Elementen aus mit Weisszement eingefärbten Beton und die verputzten Giebelseiten anderseits, sollen eine feine Verwandtschaft mit der Schulanlage anklingen lassen. Die grosse, runde Öffnung bietet Einblick in das zentrale Treppenhaus und wird zum augenzwinkernden Merkpunkt.

  • Bildungszentrum SEKII, Muttenz

  • Muttenz

  • 2019

  • Kanton Basel-Landschaft, Hochbauamt

  • Wettbewerb 4. Preis

Projektnummer

261

Ort

Muttenz

Jahr

2019

Programm

Bildung, Städtebau

Auftraggeber

Kanton Basel-Landschaft, Hochbauamt

Status

Wettbewerb 4. Preis

Beteiligte

  • Generalplaner: Proplaning AG Basel
  • Landschaft: Schmid Landschaftsarchitekten GmbH Zürich
  • Statik: ZPF Ingenieure AG Basel
  • Elektro: Pro Engineering AG Basel
  • HLKS: Stefan Graf AG Basel
  • Brandschutz: Visiotec AG Basel
  • Fassadenplaner: Christoph Etter Basel

Fotografie

Studio David Klemmer

Eines der grossen Ziele des Masterplans für das Polyfeld Muttenz ist es, ein durchlässiges und offenes Freiraumsystem auf Erdgeschossniveau zu etablieren. Dem entgegen steht die heutige Organisation des ehemaligen Technikums, bei welcher der Sockel im Kontrast zum Strassenniveau als Bezugsebene fungiert. Die Neuanlage bietet die Chance, diesen Gegensatz aufzulösen und ein durchlässiges Ganzes zu schaffen. Deshalb wird mit dem Laborbau auch der Sockelbau zurückgebaut – Ein neuer leicht eingelassener Bezugsraum entsteht, eine gemeinsame grüne Mitte.

Der Abbruch des Sockels erlaubt aber auch eine Optimierung der Gebäudevolumen und der Oberflächen. Die SEKII-Bauten werden über den neuen zentralen Hof zu einer campusartigen Gesamtanlage gefügt. Mittels eines zweigeschossigen Umgangs verbindet der Hof den Turm mit Werkstattgebäude und Aula, Turnhalle und Mensa sowie mit dem Gymnasium. Es entsteht ein Miteinander mit hoher Aufenthaltsqualität und einfacher Orientierung, wobei die einzelnen Bausteine als spezifische und optimierte Elemente entwickelt werden können.

Der offene Umgang ermöglicht eine witterungsgeschützte Verbindung der einzelnen Funktionen und erlaubt, unterschiedliche Welten und Atmosphären miteinander in Bezug zu setzen. Zugänge auf beiden Ebenen aktivieren und adressieren diesen Raum und machen ihn zur belebten und identitätsstiftenden grünen Mitte. Der räumliche Leerraum wird zum verbindenden Element.

Erschlossen wird der Raum von der Kriegackerstrasse her über zwei grosszügige Zugangsbereiche. Gymnasium und Gewerbeschule verfügen somit über eine spezifische Adresse im gemeinsamen Raum; die von beiden Nutzern geteilte Infrastruktur liegt am Hof. Der Hauptzugang zur SEKII erfolgt über eine begrünte Rampenanlage, die sich mit dem Grüngürtel verbindet. Von hier aus gelangt man entweder auf den oberen Hofumgang oder direkt in die grüne Mitte. Beide Ebenen bleiben über Sichtbezüge und Treppenverbindungen miteinander verbunden. Das Gymnasium wird ebenfalls über eine breite, teilweise überdeckte Rampe an den übergeordneten Strassenraum angebunden.

  • Umbau Kindertagesstätte Rumpelstilzli

  • Basel

  • 2019

  • Kindertagesstätte Rumpelstilzli

  • Realisiert

Projektnummer

259

Ort

Basel

Jahr

2019

Programm

Bildung, Kultur und Sport

Auftraggeber

Kindertagesstätte Rumpelstilzli

Status

Realisiert

Fotografie

Salathé Architekten Basel

Mit minimalen Eingriffen ist das Raumangebot für die bestehende Kindertagesstätte im Erdgeschoss eines Mehrfamilienhauses erweitert worden. Die Umnutzung der Büroräume geschieht auf einfache Art und Weise. Unterschiedlich Einbaumöbel unterteilen den Raum. Sie bieten Stauraum und Spielmöglichkeiten und bestimmen zusammen mit den Vorhängen und einem zentralen Lichtinstallation die Stimmung des Raumes.

  • Zentrumsentwicklung Adligenswil

  • Adligenswil

  • 2019

  • Gemeinde Adligenswil LU

  • Wettbewerb 2. Preis

Projektnummer

257

Ort

Adligenswil

Jahr

2019

Programm

Büro und Gewerbe, Städtebau, Wohnungsbau

Auftraggeber

Gemeinde Adligenswil LU

Status

Wettbewerb 2. Preis

Beteiligte

  • Landschaft: Albiez de Tomasi Landschaftsarchitekten Zürich
  • Lärmschutz: Gartenmann Engineering AG Basel
  • Brandschutz: Visiotec Allschwil

Die Bebauung sieht vor, das Areal zwischen Kantonsstrasse und Dorfplatz neu zu bebauen und verschafft der Gemeinde eine Chance ihren Ortskern ausgehend zu ordnen. Die Zentrumsfunktionen sollen konzentriert werden; inmitten der gewachsenen Struktur werden neu belebte und identitätsstiftende Räume geschaffen und vielseitig miteinander vernetzt. Es entsteht ein durchgängiges und differenziertes Ganzes. Gemeindezentrum, Einkaufsmöglichkeit und Wohnort bilden eine lebendige und zusammenhängende Welt.

  • Umbau Hallenbad Bluemewies, St Gallen

  • St. Gallen SG

  • 2019

  • Hochbauamt Stadt St. Gallen

  • Wettbewerb

Projektnummer

252

Ort

St. Gallen SG

Jahr

2019

Programm

Infrastruktur, Kultur und Sport

Auftraggeber

Hochbauamt Stadt St. Gallen

Status

Wettbewerb

Kosten

CHF 24000000.-

Beteiligte

  • Mit: claussmerz Architekten
  • Bauleitung: Schertenleib
  • Baumanagement: Partner GmbH
  • Landschaft: Stauffer Rösch Landschaftsarchitekten
  • Ingenieur: ZPF Ingenieure AG

Mit der vorgeschlagenen Neuorganisation wird das Hallenbad Blumenwies als selbstverständlicher Bestandteil in die vorhandenene Bebauung eingebunden. Flankiert von Wohnbauten, zeigt sich das Schwimmbad als ein differenziert ausformuliertes Volumen, das L-förmig einen, zur Strasse offenen Platzraum umschliesst. Die ruhige Gesamterscheinung des Baukörpers ist von der leicht reliefierten, diagonal mit Keramikplatten belegten Fassaden- und Dachausbildung geprägt, die das öffentliche Haus auszeichnet. Räumlich wird das Bad Teil des Stadtraumes und bleibt in seiner architektonischen Gestalt atmosphärisch trotzdem besonders.

Das Bad ist als konglomerater Köper angelegt, die verschiedenen, strukturell differenzierten Hallenbereich fügen sich zu einem durchlässigen Ganzen. Über den gefassten Vorplatz gelangt der Besucher in den grosszügigen, zweigeschossigen Eingangsbereich, rechtwinklig dazu, vom Bademeister in zentraler Position überblickbar, liegen die verschiedenen zenital belichteten Schwimmbereiche, die voneinander mit niedrigen Sitzstufen und Niveausprünge abgetrennt sind. Nach Osten und Westen öffnen sich die Räume zum begrünten, von unterschiedlich hohen Bäumen gefassten Aussenraum. Trotz der Kleinteiligkeit hat der Besucher immer die ganze Halle im Überblick.Der Entwurf versucht in angemessener Form den Bestand sinnvoll zu nutzen und zu erweitern. Die Tektonik des Gebäudes wird durch die Topographie des hellen Bodens mit den auf den durchlaufenden Wandschotten aufgelegten Deckenelementen geprägt. Das gefaltete Dach ist einerseits als effizientes statisches System ausgebildet, andererseits wird es zu einer Art identitätsstiftenden Thema für den Grossraum. Zwischen den Betonelementen ergänzen vorfabrizierte Holzelemente aus Brettstapel die Deckenstruktur und integrieren sowohl die natürliche, wie auch die künstliche Belichtung und schaffen ein angenehmes akustisches Raumklima.

  • Neubau «The Dadi Museum», Butte USA

  • Butte (USA)

  • 2019

  • Silver Bow Art Gallery

  • In Planung

Projektnummer

251

Ort

Butte (USA)

Jahr

2019

Programm

Kultur und Sport

Auftraggeber

Silver Bow Art Gallery

Status

In Planung

Das Projekt für ein kleines Museum für die Arbeiten von Dadi Wirz entstand aus einer Freundschaft zwischen dem Sammler Richard Nelson und dem Schweizer Künstlerpaar Dadi Wirz und Krassimira Drenska. 2019 wurde ein grosser Teil der Arbeiten von Dadi Wirz nach Montana, USA verschifft. In einem kleinen Museum soll nun die Sammlung nun einen festen Platz bekommen.
Das Museum ist als ein Konglomerat von drei additiv zueinander gefügten Volumen konzipiert. Die Silhouette mit dem markanten Dach ist schon von weitem sichtbar. Das Gebäude wirkt in seiner äusseren Erscheinung geschlossen und abstrakt und erinnert vage an die für die Gegend typischen Minenbauten. Im Innern bieten die Ausstellungsräume unterschiedliche Raum- und Lichtsituationen an. Galerie, Kabinett und Halle fügen sich zu einem Ganzen, das vielfältig genutzt werden kann. Als Zeichen zur Strasse dient eine im Beton eingelassene «tattoo-artige» Zeichnung von Dadi Wirz. Eine einfache, aufgesetzte Schrift verweist auf das Museum.

  • Arealentwicklung Papierfabrik, Grellingen

  • Grellingen BL

  • 2019

  • Ziegler AG und Gemeinde Grellingen

  • Wettbewerb 1. Preis

Projektnummer

249

Ort

Grellingen BL

Jahr

2019

Programm

Städtebau, Wohnungsbau

Auftraggeber

Ziegler AG und Gemeinde Grellingen

Status

Wettbewerb 1. Preis

Beteiligte

  • Landschaft: Westpol
  • Soziologie: Christina Schumacher

Eine Zukunft für die Vergangenheit; das Areal der Ziegler Papierfabrik. Eingebettet in die prägnante Topographie des Laufentals wird das Areal der ehemaligen Papierfabrik am Bahnhof zu einem neuen Quartier, das sich mit dem historischen Strassendorf verbindet und zu einem zeitgemässen Wohn- und Arbeitsort wächst.

Mit dem neuen Ort wird das heutige Bahnhofsquartier arrondiert und aufgewertet – es entstehen klare Adressierungen (Wohnen/Gewerbe am Bahnhof, Wohnen an der Birs, Wohnen am Park). Die Bebauung sieht in einem ersten Schritt – dem Quartierplan – vor, auf der heute unbebauten Parzellenfläche um die bestehende Villa unterschiedliche Wohn- und Eigentumsformen zu entwickeln.

Es geht darum, neben der architektonischen und typologischen Qualität eine gewisse soziale Dichte zu erzeugen. Die hohe bauliche Dichte bedingt zudem hochwertige Aussenräume, die sich über den Perimeter hinaus mit dem Dorf und den angrenzenden Naturräumen vernetzen und zusammenhängende, vielseitig nutzbare Räume mit hoher Aufenthaltsqualität generieren. Die Situation auf dem Talboden, aber auch die historische, industriell geprägte Dichte, erlaubt die Ergänzung des Bestandes mit kräftigen Volumetrien, die sowohl in Nord-Süd, wie auch in Ost-West Richtung immer wieder Durchblicke ermöglichen. Durch die spezifische Lage im Tal und den Bezug zur Topographie können höhere Gebäudevolumen gut integriert werden. Der Charakter der bestehenden Bausubstanz des Areals, aber auch die prägnanten landschaftlichen Eigenheiten bleiben erhalten und werden weitergedacht. Der Einbezug und teilweise Erhalt von ausgewählter Bausubstanz ist entscheidend für die Adressierung und die Identität des neuen Quartieres.

  • Umbau Konzerthalle «HUMBUG», Basel

  • Basel

  • 2019

  • HUMBUG

  • Realisiert

Projektnummer

247

Ort

Basel

Jahr

2019

Programm

Kultur und Sport

Auftraggeber

HUMBUG

Status

Realisiert

Fotografie

Salathé Architekten Basel

Im Rahmen der Umwandlung des ehemaligen Indutrieareals in ein neues Stadtquartier sind als erster Schritt drei Gebäudekomplexe auf dem BASF Areal für eine Zwischennutzung freigegeben worden. Zentraler Baustein dieser Zwischennutzung ist die Umwandlung einer ehemaligen Fabrikhalle für Kunstofffertigung in ein Konzert- und Veranstaltungslokal. Die ehemalige Fabrikhalle wurde mit möglichst einfachen Massnahmen als Veranstaltungsort umgebaut. Für die Umnutzung war es notwendig die erforderlichen Bewilligungen betreffend Lärmschutz und Brandschutz einzuholen. Gemeinsam mit den Betreibern ist die Halle den neuen Bedürfnissen angepasst worden. Atmosphärisch hat man versucht die Qualitäten des durch seine Nutzung geprägtenm Raumes beizubehalten und punktuell aufzuwerten. Eine aus Zementsteine gemauerte Bar, ein zentraler Ausgang und diverse bauliche Anpassungen des Bestands unterstützen in ihrer robusten Machart die Nutzung als Konzertort. Alle Massnahmen sind gmeinsam mit den Betreibern umgesetzt worden.

  • Umbau Wohnhaus Bäumlihofstrasse Basel

  • Basel

  • 2019

  • Privat

  • Realisiert

Projektnummer

243

Ort

Basel

Jahr

2019

Programm

Wohnungsbau

Auftraggeber

Privat

Status

Realisiert

Beteiligte

  • Stamm Bau AG: Holzbau, Schreiner, Bodenbeläge, Gipser, Maler, Abbruch

Fotografie

Salathé Archtekten Basel

Das Reiheneinfamilienhaus wurde 1925 durch August Künzel erbaut und ist Teil der städtebaulichen Entwicklungen im Hirzbrunnenquartier nach Plänen von Hans Bernoulli. Im Rahmen der Sanierung der Dachflächen und dem Ausbau der Wohnräume im Dachgeschoss, werden auf der Strassen- und der Gartenseite je eine Lukarne neu erstellt. Form und Position der Lukarnen betonen ihre Unabhängigkeit gegenüber der Fassade des Hauses darunter, ohne die Beziehung zu deren Öffnungen zu verlieren. Mit der stehenden Proportion spielt die Lukarne zudem viel Dachfläche frei, die als verbindendes Element die Häuserzeile eint.

Im Innern des Dachgeschosses schafft ein durchgehender Raum von Fassade zu Fassade Grosszügigkeit. Die stehenden und leicht geneigten Fenster orientieren ihn zum Himmel. Die Materialisierung im Innern schafft durch die weisslich gewachsten Holzoberflächen eine helle und natürliche Atmosphäre.

  • Neubau Mehrzweckhalle, Kindergarten- und Schulräume, Müllheim

  • Müllheim

  • 2019

  • Primarschule Müllheim TG

  • Wettbewerb 4. Preis, 1. Ankauf

Projektnummer

242

Ort

Müllheim

Jahr

2019

Programm

Bildung, Infrastruktur, Kultur und Sport

Auftraggeber

Primarschule Müllheim TG

Status

Wettbewerb 4. Preis, 1. Ankauf

Beteiligte

  • Landschaft: Berchtold.Lenzin AG Liestal
  • Statik: ZPF Ingenieure AG Basel
  • HLKS: HeiVi AG Basel

Das Wettbewerbsprogramm stellt die Frage nach der optimalen Organisation und Kombination der verschiedenen Bauaufgaben. Sind Schulräume, Kindergarten und Mehrzwecksaal als einzelne programmatische Bauaufgaben zu verstehen oder ergibt sich aus dem Zusammenwirken der Funktionen einen Mehrwert?
Das grosse, für das Dorf wichtige Infrastrukturgebäude aus Schule und Mehrzweckhalle einerseits, und der kleinmassstäbliche Kindergarten andererseits fügen sich als ungleiches Paar in die Bebauungsstruktur des Ortes. In Ihrer Unterschiedlichkeit beziehen sich beide Gebäude auf die Topographie und den ortsbaulichen Massstab. Die zentral gelegene 'Schmittwies' wird so als gemeinschaftlich genutzte Fläche, als Allmend freigespielt und bekommt eine zentrale Bedeutung.

  • Umbau Wohnhaus Birsigstrasse, Basel

  • Basel

  • 2019

  • Privat

  • Realisiert

Projektnummer

238

Ort

Basel

Jahr

2019

Programm

Wohnungsbau

Auftraggeber

Privat

Status

Realisiert

Beteiligte

Farb- und Materialkonzept mit B. Ginsberg, Grimsel

Fotografie

Annette Fischer Photography

Das Wohnhaus aus der Jahrhundertwende ist mit dem Umbau eines Geschosses in eine offene Wohnlandschaft aufgewertet. Im Kontrast zu den übrigen Geschossen schaffen hier grosszügige Öffnungen und Raumbezüge eine zeitgemässe Wohnatmosphäre. Der Eingriff zeichnet sich durch eine fein austarierte Materialität aus. Neu und Alt verbinden sich. Die vor Ort gegossenen Betonoberflächen des offenen Kochbereiches fügen sich mit den unbehandelten Gipsflächen und den gestrichenen Holzoberflächen sowie den unterschiedlichen Texturen des Bestandes zu einem atmosphärischen Gesamtstimmung.

  • Umbau Wohnhaus Oberalpstrasse, Basel

  • Basel

  • 2019

  • Privat

  • Realisiert

Projektnummer

236

Ort

Basel

Jahr

2019

Programm

Wohnungsbau

Auftraggeber

Privat

Status

Realisiert

Fotografie

Annette Fischer Photography

Das Wohnhauses wurde Ende des 19. Jahrhunderts gebaut und ist in seiner Anlage nur wenig verändert worden. Mit dem Eingriff sind nun die Badezimmer den heutigen Bedürfnissen angepasst und im Dachgeschoss ist neu eine Badestube eingerichtet worden. Die sorgfältig entwickelte Materialität und die ausgesuchten Lavabos und Armaturen nehmen die Stimmung des Hauses auf und interpretiert sie neu.

  • Museum Augusta Raurica, Standortevaluation und Machbarkeit

  • Augst

  • 2018

  • Hochbauamt Basel-Landeschaft, Augusta Raurica

  • Studie

  • Umbau Wohnhaus Kluserstrasse, Basel

  • Basel

  • 2018

  • Privat

  • Realisiert

Projektnummer

239

Ort

Basel

Jahr

2018

Programm

Wohnungsbau

Auftraggeber

Privat

Status

Realisiert

Kosten

CHF 430000.-

Fotografie

Christian Kahl

Das Haus befindet sich im Basler Bachlettenquartier an einer ruhigen Quartierstrasse. Die Bausubstanz aus dem Jahr 1913 ist grösstenteils gut erhalten und ist nur geringfügig verändert worden. Mit dem Umbau sind die Bäder und Küche, sowie ein Grossteil der technischen Infrastruktur neu geplant und ersetzt worden (Sanitärleitungen und Heizung). Sämtliche Oberflächen wurden saniert und in ihrer Materialität und Farbigkeit aufeinander abgestimmt. Neu wird die Küche mit dem Gartenraum über eine grosszügigen Holzterrasse verbunden.

  • Neubau Wohnhaus Grellingerstrasse, Basel

  • Basel

  • 2018

  • Privat

  • Studie

Projektnummer

235

Ort

Basel

Jahr

2018

Programm

Wohnungsbau

Auftraggeber

Privat

Status

Studie

Auf der heute von einer herrschaftlichen Villa besetzten, grosszügigen Parzelle im Gellertquartier, soll gartenseitig ein Teil abparzelliert und verdichtet werden. Es ist vorgesehen hier ein passgenaues Zweiparteienhaus zu realisieren, das sich atmosphärisch in den parkähnlichen, baumbestandenen Garten einfügt. In Volumetrie und Farbigkeit nimmt sich dabei der fein gegliederte, dunkle Holzbau zurück und wird zum stimmungsvollen Gartenhaus. Die grosszügigen Grundrisse öffnen sich zum Aussenraum oder führen zur Dachterrasse. Der bestehende historische Pavillon wird neu zwischen Haupt- und Hinterhaus gesetzt und wird zur gemeinsamen Mitte.

  • Städtebauliche Studie «Am Walkeweg», Basel

  • Basel

  • 2017

  • Planungsamt Basel-Stadt

  • Studienauftrag

Projektnummer

234

Ort

Basel

Jahr

2017

Programm

Kultur und Sport, Städtebau, Wohnungsbau

Auftraggeber

Planungsamt Basel-Stadt

Status

Studienauftrag

Beteiligte

  • Zusammenarbeit: Oester-Pfenninger Architekten Zürich
  • Landschaft: Schmid Landschaftsarchitekten
  • Ingenieur: ZPF Ingenieure
  • Energie: Keoto, Architecture & Energy design
  • Soziologie: Prof. Christina Schumacher

Die Chance, ressourcenbewusst zu planen, verstehen wir umfassend. Wir schlagen vor, auch mit den Zeitressourcen sämtlicher am Projekt beteiligter Akteure bewusst umgehen. Um Kosten und Energie jeglicher Art zu sparen, legt das Projekt einen Schwerpunkt auf das Management des ganzen Prozesses. Vom Konzept über den Entwurf, die Umsetzung und den Betrieb bis zur Mitwirkung.

Wie das ganze Projekt steht der Prozess unter dem Motto: So viel wie nötig, so wenig wie möglich. Über den engeren Entwurfs- und Bauprozess hinaus ist auch die Schaffung von sozialer Verbindlichkeit und Akzeptanz ein wesentlicher Faktor des Low Energy Konzepts. Mitwirkung soll an präzisen Stellen mit hoher sachlicher Kompetenz in den Prozess eingebaut werden. Das Areal hinter der S-Bahnstation ist mit seinen höchst unterschiedlichen nah- und fernräumlichen Bezügen ein hoch spezifischer Ort. Auf dem zwischen die geschichtsträchtige Parklandschaft des Friedhofs, die Weite des Infrastrukturraums Gleisfeld und die urbanen Hotspots Dreispitz und Güterbahnareal Wolf eingespannten Perimeter mit Blickachsen zur Silhouette von Basel und in das Birstal wollen wir Ruhe bewahren und Platz für vieles lassen. Deswegen schlagen wir eine urbane Grossform vor. Sie bietet die unaufgeregte Grundlage, um eine vielseitig orientierte Gemeinschaft entstehen zu lassen.

  • Arealentwicklung Victus, Aesch

  • Aesch

  • 2017

  • Victus Real Estate AG

  • Studie

Projektnummer

233

Ort

Aesch

Jahr

2017

Programm

Büro und Gewerbe, Städtebau, Wohnungsbau

Auftraggeber

Victus Real Estate AG

Status

Studie

Beteiligte

  • Baumanagement: Dietziker Partner Baumanagement, Basel
  • Landschaft: Westpol Landschaftsarchitektur, Basel
  • Raumplanung: Stierli + Ruggli Ingenieure + Raumplaner, Lausen
  • Energie: HeiVi Gebäudetechnik, Basel
  • Lärmgutachten: Gartenmann Engineering, Basel
  • Verkehrsgutachten: Rudolf Keller und Partner, Muttenz

Im Auftrag der Victus Real Estate AG entwickeln Salathé Architekten Basel ein Areal am Eingang von Aesch. Vorgesehen ist eine Überbauung mit vier unterschiedlichen Baukörpern, die sich zu einem offenen Ensemble fügen. Neben einer Vielzahl von Wohntypologien, soll auch Raum für Gewerbe/Dienstleistungen, wie auch für neuartige Bürokonzepte geschaffen werden.

Die städtebauliche Setzung orientiert sich an den Geometrien der umliegenden Bebauungen und will so die Vernetzung innerhalb des Quartiers mit den angrenzenden Wohnbebauungen stärken. Das markante Haus an der nordwestlichen Ecke der Parzelle betont den Eingang der Hauptstrasse nach Aesch und würdigt entsprechend die prägnante Lage des Ortes. Die differenzierten Aussenräume binden die Anlage im Quartier ein und ermöglichen neue Verbindung zur Hauptstrasse und zum ÖV. Die Dimensionen der einzelnen Häuser vermitteln zwischen der Körnung der westlichen Gewerbegebiete und derjenigen des Wohnens im Osten. Die Anordnung und Ausbildung der Gebäudetypen ist weiter geprägt durch die Lärmsituation an der stark befahrenen Hauptstrasse und dem nördlichen Autobahnzubringer. Ähnlich verschiedenen Charakteren auf einer gemeinsamen Bühne werden die Gebäude entsprechend ihrem Standort mit spezifischen Qualitäten entwickelt.

  • Neubau Mehrfamilienhaus, Erlenbach

  • Erlenbach

  • 2017

  • Privat

  • Studie

  • Eine grüne Mitte für Birsfelden, Zentrumsentwicklung, Birsfelden

  • Birsfelden

  • 2017

  • Gemeinde Birsfelden

  • Studienauftrag

Projektnummer

230

Ort

Birsfelden

Jahr

2017

Programm

Büro und Gewerbe, Städtebau, Wohnungsbau

Auftraggeber

Gemeinde Birsfelden

Status

Studienauftrag

Beteiligte

  • Landschaft: Schmid Landschaftsarchitekten
  • Soziologie: Christina Schumacher

Ausgangspunkt für unser Projekt ist die Überzeugung, dass Birsfelden als junge Kleinstadt einen selbstbewussten Auftritt wagen soll. Als Strategie schlagen wir vor, bestehende und neu zu schaffende Qualitäten zu vernetzen und eine möglichst grüne Mitte auszubilden. Zentrumsfunktionen sollen konzentriert werden, inmitten der gewachsenen Struktur werden belebte und identitätsstiftende Räume geschaffen. Die einmalige Lagequalität zwischen Birs und Rhein wird durch die Ausformulierung eines zentralen Raumnetzes als Wegverbindung zwischen den beiden Flussläufen gestärkt. Dazu schaffen wir eine Abfolge von diagonal zueinander versetzten Freiräumen mit unterschiedlichen Qualitäten. Am Ausgangspunkt der Sequenz steht ein vielseitig nutzbarer Platz, der die Qualitäten des Gewachsenen aufnimmt und mit einem neuen Selbstbewusstsein verwebt. Er wird geprägt durch das zentral angeordnete Stadthaus. Zwischen dem stolzen Gebäude, das sich direkt an die Strasse anschliesst, dem bestehenden Kaffeepavillon, der in der Bevölkerung verankert ist und dem neu geschaffenen Einkaufsort verweist die historische Baumgruppe aus Eichen und einer Linde auf den gewachsenen Charakter der Gemeinde. Diagonal dazu versetzt, erweitert sich der Platzraum bis zur Post und über die Strasse; er wird so zum umseitig genutzten öffentlichen Zentrum von Birsfelden.

Je nach Anlass ermöglicht die modulierbare Platzdimension ein unterschiedliches Bespielen. In kleiner Dimension wird er als alltäglicher Stadtplatz mit einem Wochenmarkt oder für ein sommerliches Freiluftkinoevent genutzt, für das Gemeindefest wird die Platznutzung über die Strasse hinweg ausgedehnt. Die an den Hauptplatz anschliessende Freiraumabfolge vernetzt ganz unterschiedliche Funktionen des täglichen Lebens über sehr kurze Wege: eine Qualität, die nur die Kleinstadt bietet. Um den Hauptplatz gliedern sich die sehr öffentlichen, publikumsorientierten Nutzungen wie ein multifunktional nutzbarer Saal und Räumlichkeiten für einen Grossverteiler. Die Gemeindeverwaltung ist im Hochhaus erdgeschossig als umseitig offener Empfangsraum angelegt. In Erweiterung des Platzraumes Richtung Rhein entwickelt sich zwischen den Neubauten eine attraktive Freiraumverbindung als grüne Weglandschaft mit hoher Aufenthaltsqualität. Entlang dieser Räume reihen sich wie an einer Perlenkette öffentliche Gebäude mit spezifischer Nutzung auf. An der Gemeindebibliothek und der Ludothek vorbei gelangt man zur Schule und von dort entlang von Wohnbauten zur Kirchstrasse, wo weiterhin das Birsfelder Museum und der Jugendtreffpunkt ihren Platz finden.

  • Neubau Golf- & Countryclub Basel, Hagenthal-le-Bas F

  • Hagenthal-le-bas (F)

  • 2017

  • Golf- & Countryclub Basel

  • Wettbewerb 1. Preis, Realisiert

Projektnummer

193

Ort

Hagenthal-le-bas (F)

Jahr

2017

Programm

Kultur und Sport

Auftraggeber

Golf- & Countryclub Basel

Status

Wettbewerb 1. Preis, Realisiert

Kosten

CHF 8000000.-

Beteiligte

  • Bauleitung: CRM
  • Ingenieur: CTE Ingenieure
  • Fassade: mit Peter Suter

Fotografie

Julian Salinas, Basel

Die Anlage des Golf- & Countryclubs Basel ist durch seine landschaftliche Einbettung im Sundgauer Hügelland geprägt. Die Grosszügigkeit der unterschiedlichen Ausblicke, bestimmen die Qualitäten des grenznahen Golfclubs. Das neue Cluhaus bildet zusammen mit dem etwas abseits dazu in den Waldsaum eingebetteten Nebengebäude, der Dépendance, ein Ensemble und besetzt die sanft geformte Hügelkuppe der Anlage. Der vollverglaste Restaurantbereich öffnet sich südseitig auf die grosszügige Terrasse und ermöglicht einen eindrücklichen Weitblick in die Landschaft.

Das obere Geschoss mit den Garderoben ist mit grossformatigen Betonelementen verkleidet, die dem Gebäude eine eigene, massstabslose Wirkung verleihen. Die vorgehängte Betonstruktur aus faserarmierten Betonelementen ist einerseits Einblicksschutz für die dahinterliegenden Garderoben, andererseits ist sie als eine Art festliches Kleid gedacht, dass dem Gebäude eine Art stolze Massstabslosigkeit verleiht. Zuletzt soll in der Geometrie der vorgefertigten Betonplatten ein entfernter Bezug zum traditionellen Riegelbauweise anklingen. Für Abendanlässe ist das Gebäude von Innen beleuchtet und strahlt in den Naturraum aus.

Die Architektur nimmt sich in ihrer gelassenen Modernität zu Gunsten des Landschaftsraumes zurück. Mit dem Ersatzneubau des Clubhauses und der Erweiterung des Nebenbaus wird die bestehende Infrastruktur des Clubs erneuert, die betrieblichen Anforderungen können den Bedürfnissen angepasst werden.

  • Dachterrasse mit Sitzungszimmer, Basel

  • Basel

  • 2016

  • ZPF Ingenieure

  • Studie

  • Umbau und Aufstockung Birmannsgasse, Basel

  • Basel

  • 2016

  • Privat

  • Realisiert

Projektnummer

214

Ort

Basel

Jahr

2016

Programm

Wohnungsbau

Auftraggeber

Privat

Status

Realisiert

Beteiligte

  • Bauingenieur: Schmidt + Partner, Büro für Bau und Holz
  • Bauphysik: Gartenmann Engineering

Fotografie

Michael Fontana

Auszeichnungen

  • Auszeichnung guter Bauten Bl und BS
  • Bester Umbau
  • Heimatschutzpreis
  • Nomination Wüstenrot Stiftung, Umgang mit denkmalwürdiger Bausubstanz

Copyright

sabarchitekten

Das kleine Stadthaus als Teil eines Blockrandgevierts im übergang zwischen Neubau und inventarisiertem Altbau leistet einen Beitrag zur baulichen Verdichtung der Stadt. Die Aufstockung in Holzbauweise ermöglicht es hochwertigen Wohnraum mitten in der Stadt zu realisieren. Dabei schafft die Verbindung von Alt- und Neubau sehr unterschiedliche Wohnqualitäten und verbindet sich im Ausdruck atmosphärisch mit dem heterogenen Quartier. Das Projekt organisiert im Erd- und im 1. Obergeschoss jeweils einfache Wohnungen, die sich strukturell in den Bestand einfügen. Die schön proportionierten Räume werden saniert und mit den nötigen Nassräumen und Küchen ausgerüstet. Der Charakter des Altbaus wird dabei bewusst gepflegt und punktuell den neuen Bedürfnissen angepasst. Ein aufgesetzter Holzbau erweitert die Wohnfläche mit einer Maisonettewohnung.

Die Aufstockung tritt zur Strasse als zweistöckiges, verputztes Volumen auf, während zum Hof die ursprüngliche dreigeschossige Struktur des Altbaus beibehalten und der Neubau nur eingeschossig in Erscheinung tritt. Anders als im Altbau verschränkt die Aufstockung Neubaubereich und Bestand zu einer luftigen Wohnlandschaft. Die geschossweise versetzten, offenen Wohn- und Essbereiche sind über eine innenliegende Treppe verbunden. Diagonale Sichtbezüge schaffen grosszügige Raumdurchblicke, der Blick wird über die Loggia in den weiten, baumbestandenen Innenhof geleitet. Einfache Materialien; rohe Gipswände, ein Boden aus Duripanelplatten und Eichenriemen ergänzen den Bestand und binden den Aufbau atmosphärisch an die historische Bausubstanz. Das Thema des Weiterbauens prägt auch die äussere Erscheinung des Hauses. Der Holzbau zeigt sich als verputzter Körper und verbindet sich mit so dem Bestand; die neuen Holz-Metallfenster nehmen Bezug zur Geometrie der bestehenden Fassadeneinteilung und interpretieren in ihrer Ausformung die historischen Gewände. Im übergang zwischen modernem Renditebau und historischem Stadthaus schlägt das Projekt einen entspannten Umgang mit Stadt und Geschichte vor.

  • Totentanz, Ausstellungsbeitrag

  • Basel

  • 2016

  • Ausstellungsbeitrag (selbstiniiziert)

  • Realisiert

Projektnummer

201

Ort

Basel

Jahr

2016

Programm

Ausstellung

Auftraggeber

Ausstellungsbeitrag (selbstiniiziert)

Status

Realisiert

Beteiligte

Mit Axel Gassmann

Der Tod ist mitten im Leben. Räumlich an den Randgerückt, in Friedhöfen rationell organisiert, ist er doch mitten unter uns. Wir stellen uns vor, dass er wieder sichtbarer Teil unseres Lebens wird. Wie in den historischen Kreuzgängen, am Totentanz oder auf den ehemaligen Gottesackern, die heute als Parkanlagen genutzt sind, sollen Tod und Leben wieder versöhnt werden. Wir wünschen uns keine monumentalen Grabanlagen, keine industrialisierten Friedhofslandschaften, aber Orte der Besinnung mitten in der Stadt.

  • Neubau Wohnhaus Erlenmatt, Baustein 11, Basel

  • Basel

  • 2015

  • Stiftung Abendrot

  • Wettbewerb 2. Preis

Projektnummer

221

Ort

Basel

Jahr

2015

Programm

Wohnungsbau

Auftraggeber

Stiftung Abendrot

Status

Wettbewerb 2. Preis

Copyright

sabarchitekten

Das Konzept für die beiden Bausteine der Stiftung Abendrot in der Wohnüberbauung auf der Erlenmatt besteht darin zwei ähnliche Häuser zu entwickeln, in welchen Austausch und Begegnungen, wie auch Privatheit und persönlicher Freiraum gleichsam und auf eine selbstverständliche Art und Weise gefördert werden. Die einfache Grundrisstypologie ist Abbild dieser Absichten. Mehrere Schichten staffeln den Grundriss in der Tiefe und erzeugen unterschiedliche Raumzonen, welche eine hohe Flexibilität und Variabilität aufweisen. Damit wird den programmatischen Vorgaben an sparsame Grundrissflächen, energetische Anforderungen, sowie ökologischen Konstruktionsweisen ein charaktervoller, architektonischer Ausdruck verliehen.

  • Umbau und Umnutzung Rennbahnklinik in Studierendenwohnen

  • Muttenz

  • 2015

  • Bellerive Immobilien AG v.d. Pensimo Fondsleitung

  • Realisiert (Zwischennutzung)

Projektnummer

206

Ort

Muttenz

Jahr

2015

Programm

Wohnungsbau

Auftraggeber

Bellerive Immobilien AG v.d. Pensimo Fondsleitung

Status

Realisiert (Zwischennutzung)

Kosten

CHF 2500000.-

Beteiligte

Bauleitung: Eigenmann Partner

Fotografie

Julian Salinas

Auszeichnungen

Goldener Hase 2015, die Besten (Hochparterre)

Copyright

sabarchitekten

Um den, mit dem Auszug der Rennbahnklinik drohenden Leerstand zu verhindern, wurden die ehemaligen Klinikflächen am Rand des Polyfelds zu Wohnungen mit beschränkter Nutzungsdauer umgebaut. In zwei Gebäudeteilen wurden sechzig, teils als Wohngemeinschaft, teils als möblierte Einzelräume vermietete Zimmer realisiert.

Aufgrund der baulichen und ökonomischen Bedingungen sind in kurzer Zeit und mit minimalen Mitteln eigenwillige Wohnungen unterschiedlicher Prägung entstanden. Die Grundrisse sind in die, bis auf die Kerne leergeräumten Geschosse, eingepasst und reagieren in ihrer Anlage auf die eigenwillige Geometrie des Gebäudes, sowie auf lärmtechnische Vorgaben. Die einfachen Gipsständerwände aus sichtbar geschraubten Platten und offen geführte Installationen bestimmen zusammen mit den «as found» belassenen Böden und Decken den Charakter der Wohnungen. Der private Bereich der Zimmer im Gebäudeteil A ist mit einem einfachen Holzboden belegt der sich über die ebenfalls mit Holzplatten eingefassten Türleibungen, im Erschliessungsraum abzeichnet. Die Innenwelt – ein collageartiges Raumgefüge – steht durch seine Unfarbigkeit im Kontrast zur bunten Aussenhülle des Gebäudes und wird zu einem atmosphärischen und offen bespielbaren Wohnort für Studierende.

  • Neubau Kinderkrippe und Gemeindesaal, Stallikon

  • Stallikon

  • 2014

  • Gemeinde Stallikon

  • Wettbewerb 1. Preis, Realisiert

Projektnummer

181

Ort

Stallikon

Jahr

2014

Programm

Bildung, Kultur und Sport

Auftraggeber

Gemeinde Stallikon

Status

Wettbewerb 1. Preis, Realisiert

Kosten

CHF 5000000.-

Standart

Minergie

Beteiligte

  • Bauleitung: Gretener Bauplanung
  • Landschaft: asp Landschaftsarchitektur, Zürich

Fotografie

Fotograf Arazebra, Zürich

Auszeichnungen

Auszeichnung guter Bauten

Copyright

sabarchitekten

Die bemerkenswerte landschaftliche Einbettung und der dörfliche Siedlungscharakter prägen das Erscheinungsbild von Stallikon. Der geplante Neubau schreibt sich in dieses harmonische Miteinander ein und interpretiert die gestellte Aufgabe mit einem vielgesichtigen Baukörper, der die Konstellation von Schulhaus und Feuerwehrmagazin am übergang zur offenen Landschaft ergänzt. Zum Dorf und zur Strasse hin tritt das neue Gebäude als öffentliches, zweigeschossiges Haus in Erscheinung. In seiner Geometrie nimmt es selbstverständlichen Bezug zum Schulhaus und nutzt den bestehenden Parkplatz als Anbindung und Zugang. Zur Landschaft hin zeigt sich das Volumen als eingeschossiger, pavillionähnlicher Baukörper. Fingerartig verzahnt sich das Volumen mit dem Landschaftsraum und bildet überblickbare und geschützte Aussenräume. Die Form und äussere Erscheinung des Hauses sind stark durch seine innere Durchbildung geprägt; durch die daraus entwickelten volumetrischen Einzüge und Betonungen wird das Volumen gegliedert und differenziert. Dieses Wechselspiel zwischen grossem Haus und der kleinen überblickbaren Welt für Kinder prägt auch die innere Organisation. Warme, mineralische Materialien verleihen dem Innenraum eine angenehme Stimmung, welche mit dem Klinkerboden im Obergeschoss im Korridor eine starke Akzentuierung erhält. Durch die ebenerdige Anordnung aller Räume kann auch dieser Bereich ohne Anforderungen an den Brandschutz (Fluchtweg) als Aufenthaltsbereich genutzt werden.

  • Umbau Alterspension Dalbenhof, Basel

  • Basel

  • 2013–2015

  • CMS Basel

  • Realisiert

Projektnummer

152

Ort

Basel

Jahr

2013–2015

Programm

Infrastruktur, Kultur und Sport, Wohnungsbau

Auftraggeber

CMS Basel

Status

Realisiert

Kosten

CHF 13000000.-

Beteiligte

Bauleitung: Fedele Architektur

Auszeichnungen

Auszeichnung guter Bauten

Copyright

sabarchitekten

Die Alterspension Dalbehof, 1974 und 1984 erbaut, befindet sich an zentraler, ruhiger Lage im Gellertquartier. Der Gebäudekomplex aus drei, auf einen erdgeschossigen Verbindungsbau aufgesetzten, turmartigen Hochbauten zieht sich leicht von der Strasse zurück und wirkt so als Gebäude im Park.

Architektonisch ist der Bau in seiner Erscheinung durch seine zeitspezifische Materialität aus Sichtmauerwerk und die volumetrische Formung der Hochbauten geprägt. Grundsätzlich gibt es drei Massnahmenbereiche. Neben den Strangsanierungen in den Wohntürmen, wird der Eingangsbereich mit Erschliessung des Untergeschosses neu organisiert, sowie das Hallenbad komplett umgestaltet.

Der Umbau wurde im teils bewohntem Zustand in 2 Etappen durchgeführt. In der ersten Etappe wird der hintere Turm B, die Studentenwohnungen saniert und das Hallenbad im Untergeschoss mit allen dazugehörenden Nebenräumen neu geordnet und saniert. über die neue Treppe werden die Benutzer vom neuen Eingangsbereich über einen schnorchelartigen Zugangsbereich ins Untergeschoss geführt.

Ein aufgesetztes Beleuchtungsband führt den Besucher vom Eingang zu den Garderoben und in die Schwimmhalle. Der gesamte Badebereich setzt sich durch seine Materialität und Beleuchtung vom Rest des Hauses ab. Die Schwimmhalle wird wesentlich aufgewertet und strahlt neu einen «Wellness-Charakter» anstatt Medizinalbadatmosphäre aus. Die intensive Farbigkeit der Oberflächen verleiht der Schwimmhalle eine eigene Atmosphäre. Blickpunkt ist der als eine Art Laterne ausgebildete Lichthof. Hier wird ein indirekt beleuchtetes Faux-Terrain ausgebildet, das einen interessanten und abwechslungsreichen Bezug zum Aussenraum herstellt und so der Schwimmhalle einen spezifischen unverwechselbaren Charakter verleiht und der Kunst am Bau als Bühne dient.

Im Erdgeschoss werden die Studentenzimmer saniert, mit neuen Bädern ausgestattet und die Gemeinschaftsküche wird erneuert. Zudem wird der Mehrzweckraum saniert und mit einer Teeküche ergänzt. In der zweiten Etappe wird der Turm A saniert und der Eingangsbereich neu erstellt. Mit der Aufwertung des Eingangsbereiches soll der Auftritt des Hauses gegenüber dem Quartier offener, einladender und transparenter werden. Die geplanten Massnahmen beinhalten neben der räumlichen Vergrösserung der Anlage auch eine Klärung des vorgelagerten Aussenraumes. Der ehemals als funktionelle Parkierungsfläche genutzte Vorbereich wird aufgewertet und als Aufenthaltsbereich der sich zum Quartier öffnet neu gestaltet.

Die Halle (als neuer zentraler Eingangsraum) wird vollflächig verglast. Neben dem zentralen Windfang, werden zwei kojenartige Räume als Sitz- und Aufenthaltsbereiche ausgestaltet. Durch die besondere Materialisierung werden diese offenen Raumnischen bewusst in Wert gesetzt und betonen in ihrer Wirkung die wohnlichen Qualitäten des Hauses. Ebenfalls besonderer Ort in der Eingangshalle ist der Empfang der in seiner Materialität und Farbigkeit ein gut erkennbarer Orientierungspunkt im Haus wird. Direkt dahinter wird das neue Büro der Heimleitung und Aufenthaltsräume für das Personal erstellt. Die Beleuchtung im Restaurant wird in Anlehnung an das neue Lichtkonzept im Eingang neu gestaltet.

  • Umbau Wohnhaus Glasbergerstrasse, Basel

  • Basel

  • 2013

  • Privat

  • Realisiert

Projektnummer

189

Ort

Basel

Jahr

2013

Programm

Wohnungsbau

Auftraggeber

Privat

Status

Realisiert

Kosten

CHF 500000.-

Beteiligte

Bauingenieur: Jürg Merz

Fotografie

Michael Fontana

Copyright

sabarchitekten

1925 baute Paul Hosch das bürgerliche Wohnhaus am Rand des Kannenfeldparks. Entgegen der vorherrschenden Zeilenbebauung, ist das Haus freistehend und weit von der Strasse abgerückt. Der dadurch entstandene grosszügige Vorgarten, welcher ursprünglich als Vorfahrt genutzt wurde, bildet heuten einen herrschaftlichen Auftakt und wohltuenden Zugang zum Gebäude. Das Haus ist typologisch klar organisiert. Neben einer schmaleren Erschliessungs- und Nutzschicht liegen die weiträumigen Wohnräume. Aussergewöhnlich ist dabei, dass diese Raumschicht aus einer Sequenz von drei hinter einander gelegten Räumen besteht, wobei der mittlere Raum über die Seitenfassade belichtet wird. Nachdem das Haus in den Jahren vor der umfassenden Sanierung von zwei unabhängigen Parteien bewohnt und auch entsprechend aufgeteilt wurde, galt es, die räumlichen Qualitäten wieder herzustellen. Mit einfachen aber präzisen Eingriffen werden die räumlichen Verhältnisse geklärt. So konnte durch das öffnen der bestehenden Verbindung zwischen Wohnzimmer und Bibliothek sowie das Einfügen einer neuen Verbindung zwischen Essen und Bibliothek eine Raumfolge geschaffen werden, wodurch die gesamte Gebäudetiefe erlebbar wird und die angrenzenden Aussenräume in diese Sequenz eingebunden werden. Eine zurückhaltende Materialisierung, dezente Farbigkeit und die einfache Gestaltung der neuer Einbauten stehen für einen respektvollen und zurückhaltenden Umgang mit dem qualitätsvollen Bestand.

  • Neubau Sporthallen Gymnasium Liestal

  • Liestal

  • 2013

  • Hochbauamt Basel-Landschaft

  • Wettbewerb 1. Preis, Realisiert

Projektnummer

169

Ort

Liestal

Jahr

2013

Programm

Bildung, Kultur und Sport

Auftraggeber

Hochbauamt Basel-Landschaft

Status

Wettbewerb 1. Preis, Realisiert

Kosten

CHF 12000000.-

Standart

Minergie P Eco

Beteiligte

  • Landschaft: Berchtold.Lenzin
  • Ingenieur: Frei Ingenieure, Basel
  • Totalunternehmer: Glanzmann Generalunternehmung AG

Fotografie

Ruedi Walti

Auszeichnungen

Auszeichnung guter Bauten BL und BS

Copyright

sabarchitekten

Die bestehende Schulanlage des Architekten Rudolph Meyer ist in ihrem architektonischen Ausdruck eigenständig und differenziert zur näheren Umgebung ausgebildet. Unterschiedliche Volumina gruppieren sich um den Hauptbau, die fliessenden Erschliessungsräume, sowie das Material Beton binden die Anlage zu einer Gesamtfigur zusammen. Die neuen Sporthallen fügen sich in die architektonische Logik dieser Figur ein. Der neue Baukörper wird ein selbstverständlicher Teil der kubischen Staffelung der Volumen und damit Teil der Gesamtanlage. Gleichzeitig wird der ehemals als Nebeneingang konzipierte Zugang von der Friedensstrasse durch die Positionierung des neuen Volumens räumlich aktiviert. Dieser Zugang mündet in einen neuen Pausenhof, welcher dem eigentlichen Eingang vorgelagert ist und über die bestehende Aussentreppe mit dem Haupteingang direkt verbunden ist. Diese räumliche Komplexität erlaubt es, die funktionalen Zuordnungen, welche sich über die Jahre verschoben haben neu und eindeutig zu lösen.

Der im Minergie-P Standard konzipierte Erweiterungsbau verschiebt den Schwerpunkt der Anlage nach Norden und wertet den bis dahin als Parkplatz genutzten Aussenraum in diesem Bereich auf. Die Innere Organisation ist kompakt und entspricht dem einfachen Raumprogramm. Im einseitig belichteten Sockelgeschoss sind die zu den Aussenanlagen verglasten Lehrerbereiche sowie der Gymnastikraum angeordnet. Zurückgesetzt zu diesem vorgelagerten Band entwickelt sich der kompakte Turnhallenkörper, der als einfacher Kubus angelegt ist. Eine stirnseitige Erschliessung einerseits und eine längsgelegte Nutzschicht mit Garderoben und Technikräumen andererseits bestimmen die räumliche Disposition der Anlage. Einläufige Treppe verbinden die vier Geschosse miteinander und vermitteln eine räumliche Grosszügigkeit.

Die beiden übereinander liegenden Hallen werden räumlich über die Struktur der Betonträger und die bandartige Belichtung bestimmt. Dabei differenziert die Position des längsseitig angelegten Fensterbandes die räumliche Ausprägung der beiden Hallen je nach Geschoss. Die untere Halle öffnet sich im oberen Bereich zum Zugangsweg, während die obere Halle über ein bodenebenes Fensterband belichtet wird. In ihrer dezenten Farbigkeit sind die beiden Hallen warm und licht. Der helle Bodenbelag und die darauf abgestimmte Wandverkleidung aus lamellenartigen Akustikelementen bestimmen die heitere und konzentrierte Gesamtstimmung der Innenräume und bilden einen angenehmen Kontrast zur farbigen Sportwelt. Der äussere Ausdruck fügt sich in die Sprache der Gesamtanlage und interpretiert deren prägende Materialität. Der Massivbau ist mit einer gestrichen Holzverkleidung versehen, die in ihrer leicht reflektierenden Farbigkeit die Struktur der Brettschalung der Betonoberfläche der bestehenden Schule interpretiert.

  • Umbau und Neukonzeption «anfos/haus», Basel

  • Basel

  • 2013

  • Anfos Immobilien AG, vertreten durch UBS Fund Management

  • Wettbewerb 1. Preis, Realisiert

Projektnummer

159

Ort

Basel

Jahr

2013

Programm

Büro und Gewerbe, Infrastruktur, Städtebau, Wohnungsbau

Auftraggeber

Anfos Immobilien AG, vertreten durch UBS Fund Management

Status

Wettbewerb 1. Preis, Realisiert

Kosten

CHF 45000000.-

Beteiligte

  • Bauleitung: Unirenova-Steiner
  • Ingenieur: Schmidt + Partner
  • Haustechnik: Stokar + Partner
  • Fassade: PPEngineering
  • Sanitär: Sanplan Ingenieure AG
  • Brandschutz: A+F Brandschutz
  • Bauphysik: Bakus

Fotografie

Ruedi Walti

Auszeichnungen

  • Auszeichnung guter Bauten BL und BS
  • Heimatschutzpreis 2013

Copyright

sabarchitekten

Das anfos/haus wurde 1969 von den Architekten Johannes Gass und Wilfried Boos erbaut und ist ein eindrückliches Beispiel grossstädtischer Architektur in Basel. Aufgrund von energetischen Mängel veranstaltete die UBS Fund Management AG im Jahr 2008 einen Studienauftrag auf Einladung für einen Konzeptvorschlag, um die Liegenschaft umfassend zu sanieren und auf dem Immobilienmarkt optimal positionieren zu können.

Architektonisch strahlt das über vierzigjährige Gebäude eine Art «gelassene Eleganz» aus, der durchaus eine gewisse Zeitlosigkeit zugetraut werden kann. Entsprechend wurden die Qualitäten des Hauses beibehalten und gestärkt. Die Sanierungsmassnahmen hatten zur Absicht das Gebäude energetisch, statisch und organisatorisch den heutigen Anforderungen anzupassen und die verschiedenen Nutzungsbereiche räumlich zu klären und aufzuwerten.

Dem Gebäude wurde ein grosszügiger urbaner Leerraum als Halle eingeschrieben. Diese zweigeschossige Halle ist Mittelpunkt und Herz des neuen anfos/haus und ist über ein prägnantes Oblicht natürlich belichtet. Sie bindet dabei die beiden kommerziell genutzten Stockwerke zusammen und ist im Netz der innerstädtischen Verbindungen zu einem wichtigen Bezugsort. Ein innerer Ring von Läden, organisiert sich um die grosszügige Halle.

Die Büroflächen im 2. bis 4. Obergeschoss wurden beibehalten und in ihrer Anlage geklärt, indem ein neuer, dreigeschossiger Zwischenbau den Hof umschliesst und die beiden bestehenden Flügel miteinander verbindet. Dies ermöglicht neue Organisations- und Aufteilungsformen und ein dem Gesetz entsprechendes Fluchtwegkonzept.

Das anfos/haus bietet die Möglichkeit, in den beiden obersten Etagen attraktives Stadtwohnen zu etablieren. 21 unterschiedliche Geschoss- und Maisonnettewohnungen ergänzen die Nutzungsvielfalt, welche gemeinsam mit dem öffentlichen Parkhaus in den Untergeschossen dem Gebäude seinen städtischen Charakter verleiht.

  • Neubau Primarschule Schoren, Basel

  • Basel

  • 2012

  • Kanton Basel-Stadt

  • Wettbewerb 2. Preis

Projektnummer

192

Ort

Basel

Jahr

2012

Programm

Bildung, Kultur und Sport

Auftraggeber

Kanton Basel-Stadt

Status

Wettbewerb 2. Preis

Beteiligte

  • Landschaft: ASP Landschaftsarchitekten, Zürich
  • Brandschutz: A+F Brandschutz, Pratteln
  • Ingenieur: Aegerter & Bosshardt AG, Basel
  • Energie: Moosmann Bitterli Architekten, Basel
  • HLS: Waldhauser Haustechnik, Münchenstein
  • Soziologie: Prof. Christina Schumacher, Zürich

Copyright

sabarchitekten

Die neue zeilenförmige Bebauung, die sich in die ortsspezifische Massstäblichkeit und Bebauungsstruktur einpasst bestimmt die Identität des Wohnquartiers. Ein durchlässiges, eng vernetztes Ganzes, in dem Schule und Tagesnutzungen sowohl selbstverständlicher Teil als auch ausgesuchter Ort werden. Das neue Schulhaus ist selbstverständlicher Teil des neuen Quartiers und ist sowohl öffentliches Gebäude mit Identifikationscharakter für das Quartier als auch flexibler und anregender Aufenthaltsort für Kinder.

Ein Schulhaus wird heute anders und intensiver genutzt als früher. Eine ganzheitliche schulische Betreuung umfasst auch die Tagesbetreuung und zusätzliche Nutzungen für ausgesuchte Räume wie Aula und Sporthallen. Das neue Schulhaus wird so zu einem ganztägig genutzten, komplexen Raumgefüge, das im Gegensatz zu historischen Schulhaustypologien auch Doppel- und Mehrfachnutzungen zulassen muss. Wir stellen uns deshalb eine offene und durchlässige Struktur mit grosszügigen Räumen und vielfältigen Bezügen zum Aussenraum vor. Das neue, architektonisch sorgfältig gestaltete Schulhaus soll Lernende und Lehrende, Kinder und Erwachsene sinnlich anregen, zum Entdecken und Experimentieren einladen und so zu einem neuen, starken und charaktervollen Ort wachsen.

Die Schule als Teil des Quartiers: Die vorgeschlagene zeilenförmige Bebauungsstruktur besetzt den Perimeter flächig. Wohn- und Schulbauten bilden ein zueinander wenig differenziertes homogenes Feld, das fussläufig erschlossen wird. An den Randbereichen des dreieckigen Baufelds artikulieren jeweils spezifische Aussenräume die Übergänge zu den angrenzenden Quartierstrukturen und werden zu Verknüpfungs- und Kommunikationsbereichen im Quartier.

Zum Schorenweg sind die Kopfbauten der Zeilen angeordnet; es entsteht so ein duchlässiges System, das mit der östlich des Schorenweg gelegenen Bebauung mit Hochhäusern kontrastiert und von der Eigenart dieses Stadtbereiches erzählt. Mit der Interpretation des städtebaulichen Musters der geschützten Siedlung versuch das Projekt den Bestand einzubinden und dadurch in seiner Substanz zu kräftigen. Die Schulbauten und die Tagesstrukturen sind in zwei parallelen, aber zueinander versetzten Volumen angeordnet. Dabei bestimmt die unterirdische angeordnete Turnhalle die Position der Baukörper. Der dreigeschossige Schulhausbau und das eingeschossige Vis-à-Vis schaffen dabei ein gefasstes Ensemble mit zwei querliegenden Zugangsbereichen. Durch den Versatz der beiden Bauten werden zudem die beiden Kopfsituationen differenziert. Zum Schorenweg schiebt sich das überhohe Gebäude der Aula sichtbar in die Strassenfront, zur angrenzenden Siedlung entsteht ein geschützer Aussenraum für die Kindergärten.

  • Wandelbares Unternehmerhaus, Pratteln

  • Pratteln

  • 2012

  • LastAG

  • Studie

Projektnummer

176

Ort

Pratteln

Jahr

2012

Programm

Büro und Gewerbe, Infrastruktur

Auftraggeber

LastAG

Status

Studie

Beteiligte

Ingenieure: zpf Ingenieure Basel

Copyright

sabarchitekten

Projektstudie für ein «wandelbares Unternehmerhaus»: Im Rahmen einer Studie sollte ein wandelbares Gewerbehaus für eine dreieckige Parzelle im Gewerbegebiet von Pratteln entwickelt. In Zusammenarbeit mit zpf Ingenieuren ist eine flexible Gebäudestruktur entwickelt worden, die unterschiedliche Nutzungsszenarios ermöglicht.

  • Neubau Wohnhaus, Saillon

  • Saillon

  • 2012

  • Privat

  • Realisiert

Projektnummer

155

Ort

Saillon

Jahr

2012

Programm

Wohnungsbau

Auftraggeber

Privat

Status

Realisiert

Beteiligte

  • Bauleitung: Pascal Panchaud
  • Ingenieur: Gex Dorthe Ingenieurs
  • Akustik: Bakus

Fotografie

Christian Kahl

Copyright

sabarchitekten

Das alte Dorf Saillon liegt am Berghang über der Rhone-Ebene zwischen Martigny und Sion. Auf dem Talboden ist während den letzten Jahrzehnten auf der Grundlage der einst landwirtschaftlich genutzen Parzellen eine heterogene und ungeordnete Siedlungsstruktur entstanden. Inmitten dieser kleinteiligen Parzellenstruktur galt es, ein Haus für eine alleinerziehende Mutter und ihre zwei Söhne zu entwerfen.

Die Parzelle grenzt an das Elternhaus der Bauherrin und ist heute besetzt durch eine kleine, niederstämmige Aprikosenplantage. Der Entwurf versucht diese spezifischen Qualitäten zu bewahren und thematisiert die Reihung der Aprikosenbäume als übergordnetes Prinzip. Parallel dazu wird das Volumen in den hintersten Teil des ehemaligen Gartens gesetzt und wird so nahezu unsichtbar.

Je nach Jahreszeit ist einzig die markante Silhouette des Gebäudes ersichtlich – im Erdgeschoss entsteht dann zwischen Aprikosenplantage und Wohnräumen ein intimer, abgeschlossener Aussenraum. Von der Anlage her ist das Gebäude als einfache Reihung von Räumen organisiert. über eine nordseitige Erschliessung entlang der vom Boden abgesetzten Schlafräume gelangt man zum überhohen Wohnraum, der sich zum Garten öffnet.

Im Obergeschoss befinden sich die Kinderzimmer und eine grosse Terrasse, die über eine Aussentreppe an den Gartenbereich angeschlossen ist. In der Materialisierung nimmt sich das Gebäude zurück. Aussenputz und Holzfenster bestimmen die äussere Erscheinung. Mit der farblichen Betonung der öffnungen wird die Massstäblichkeit des «kleinen» Hauses gebrochen und unterstreicht eine gewisse Eigenart des Gebäudes.

  • Umbau Wohnhaus Blauenstrasse II, Basel

  • Basel

  • 2011

  • Privat

  • Realisiert

Projektnummer

168

Ort

Basel

Jahr

2011

Programm

Wohnungsbau

Auftraggeber

Privat

Status

Realisiert

Beteiligte

Bauingenieur: Jürg Merz

Fotografie

Christian Kahl

Copyright

sabarchitekten

Das Gebäude an der Blauenstrasse 13 in Basel ist ein typischer dreigeschossiger Blockrandbau aus dem Ende des 19. Jahrhunderts. Das Gebäude liegt im Übergang zwischen vier neun Meter tiefen Reihenhäuschen und der angrenzenden zwölf Metertiefen Neubebauung. Mit verschiedenen punktuellen Eingriffen ist das mehrfach umgebaute Wohnhaus den Bedürfnissen einer vierköpfigen Familie angepasst worden. Das Dach ist mit minimalen Eingriffen als Arbeits- und Schlafbereich ausgebaut worden, während im Erdgeschoss ein eingeschossiger Anbau aus Holz die Wohnfläche markant vergrössert. Der Anbau ist über die halbe Gebäudebreite ausgeführt und ermöglicht so eine volumetrische Anbindung an den angrenzenden Neubau. über ein grossformatiges Eckfenster werden neue Perspektiven zum Garten geöffnet und schafft mit dem neu als offene Wohnküche organisierten Kochbereich ein neue, fein zonierte Raumlandschaft. Die weiss gestrichenen Wände und die leicht getönte Farbigkeit der Einbaumöbel und Fenster kontrastieren mit der rohen Qualität des Parketts. Trotz der bescheidenen Dimensionen des Hauses entsteht so eine Art durchgehende Grosszügigkeit, die dem einfachen ehemaligen Arbeiterhaus eine einfache und elegante Wohnlichkeit verleiht.

  • Wohnüberbauung Dornacherweg, Reinach

  • Reinach

  • 2010

  • Kanton Basel-Landschaft, Bürgergemeinde Reinach

  • Studienauftrag, 1. Preis

Projektnummer

166

Ort

Reinach

Jahr

2010

Programm

Städtebau, Wohnungsbau

Auftraggeber

Kanton Basel-Landschaft, Bürgergemeinde Reinach

Status

Studienauftrag, 1. Preis

Beteiligte

Akustik: Gruner AG

Copyright

sabarchitekten

Das Baufeld zwischen Dornacherweg und Baslerstrasse ist eine Schlüsselparzelle im Stadtgefüge von Reinach. Das Projekt bietet die Chance eine strukturelle und räumliche Klärung zu initiieren, die den baulichen Zusammenhalt der Siedlungsstruktur entlang der Baslerstrasse verdeutlicht.

Die Bebauung entlang der Baslerstrasse ist vor allem geprägt von Wohnbauten unterschiedlichster Grösse und Qualität. Die verschiedenen Bebauungsmassstäbe sowie Vorgarten- und Abstandsgrün bestimmen den erfahrbaren Strassenraum. Nur wenige der Bauten entwickeln dabei einen Strassenbezug und so etwas wie städtische Dichte, obwohl die zunehmende Nachverdichtungen die Wahrnehmung des Raumes entlang der Strasse zunehmend als zusammenhängende Bandstadt stärken und als Stadt vor der Stadt lesbar machen.

Die Lage der beiden Parzellen ist bestimmt durch das sanfte Ausschwenken der Baslerseite zum Auwald hin einerseits, andererseits durch die drei zurückgesetzten Wohnhochhäuser auf der gegenüberliegenden Strassenseite. Der Auwald und der undifferenzierte, parkähnliche Aussenraum gegenüber scheinen sich an dieser Stelle fast zu berühren.

Das Projekt thematisiert die kontrastreiche Beidseitigkeit der Parzelle. Mit einem niedrigen, durchgehenden Baukörper wird versucht dem Ort zur Baslerstrasse hin eine angemessene Urbanität zu geben. Entgegengesetzt dazu soll die Bebauung vom Dornacherweg als oszillierendes und wohnliches Gegenüber des Waldsaums wahrgenommen werden. Den drei Hochhäusern wird eine langestreckte, ausgreifende Figur entgegengesetzt, die den Strassenraum begleitet, ihn artikuliert und rythmisiert. Umseitig eingespannt in der taillierten Parzelle, faltet sich der Baukörper zu einer offenen Figur, die von den unterschiedlichen Tiefen des Baufeldes profitiert. Dabei ist das Gebäude durch seine Knickungen nicht unmittelbar als zusammenhängender Körper erfahrbar, sondern als Sequenz artikulierter Volumen.

Über die volumetrische Bearbeitung mit Attikas und Rücksprüngen verbindet sich der drei- und viergeschossige Gebäudekörper mit dem kleinteiligen Kontext. Die grossmassstäbliche Figur versteht sich als eine Art Pendant zu den vertikalen Akzenten der Wohntürme. Erst im Kontext mit dem unstädtischen Siedlungsrand und den dahinterliegenden Wohntürmen auf der gegenüberliegenden Seite ist die Geste zu lesen.

  • Testplanung Siedlungsentwicklung «Im Bruehl» Reinach

  • Reinach

  • 2010

  • Gemeinde Reinach

  • Studie

Projektnummer

162

Ort

Reinach

Jahr

2010

Programm

Städtebau, Wohnungsbau

Auftraggeber

Gemeinde Reinach

Status

Studie

Beteiligte

Landschaftarchitektur: Robin Winogrond

Copyright

sabarchitekten

Reinach, Im Brühl - ein neues Stadtquartier im Grünen. Übersichtliche und differenzierte Bebauungsmuster formen hier ein räumlich vielseitiges und durchlässiges Ganzes. Die grüne Mitte um den Dorfbach wird für die Bewohner zum gemeinsamen Ort zwischen Zentrum und Landschaft.

Im urbanen Siedlungsraum des Birstals ist der Druck auf die noch nicht überbauten Landschaftsräume gross. Um die Qualität der Siedlungsräume mit ihrer Nähe zu Nah- und Nächsterholungsräumen zu bewahren und zu stärken ist es zentral, das es nur an ausgesuchten Orten zu einer Neubebauung kommt. Das Gebiet ‚Im Brühl’ ist eine durch die Kantonstrasse klar zum Landschaftsraum abgegrenzte Raumtasche. Ihre Dimension ist beträchtlich; ihre städtebauliche Entwicklung für Reinach folgerichtig. Die neue Bebauungsstruktur soll sich mit dem heterogenen Umraum verzahnenund die jeweils ortsspezifischen Qualitäten interpretieren. Wir schlagen deshalb vor, den zur Verfügung stehenden Raum mit unterschiedlich gearteten Bebauungsmustern zu organisieren. Es ist es uns dabei ein Anliegen ‚kontextuell’ zu denken und die neuen Siedlungselemente mit unterschiedlichen Mitteln volumetrisch und atmosphärisch im Stadtgefüge von Reinach zu verankern um damit ein lebendiges Ganzes zu ermöglichen. Im Gegenzug zur städtebaulichen Anlage, die auf die Morphologie der bestehenden Struktur, sowie auf topographische Eigenheiten Bezug nimmt, soll aber die Lage am Siedlungsrand zur offenen Landschaft hin dieGrundstimmung des neuen Stadtquartiers prägen.

Mit der Bebauungsstruktur schlagen wir klare und übersichtlichen Bebauungsmuster vor, die eine eindeutige Adressbildung erlauben. In der vorgeschlagenen Unterschiedlichkeit der typologischen Ausbildung liegt der Ansatz für ein differenziertes und urbanes Wohnungsangebot und die entsprechende soziale Durchmischung. Wir stellen uns einen durchgrünten Stadtteil vor, der zeitgemässes Wohnen am Siedlungsrand ermöglicht. Anders als im Grossteil des gewachsenen Siedlungsbildes von Reinach sind aber ausgesuchte öffentliche Aussenräume mitgedacht, die mit den privaten Gärten im Erdgeschoss in Wechselwirkung stehen und dem Quartier eine übergordnete und gemeinsame Identitaet verleihen.

  • Umbau Römermuseum Augusta Raurica, Augst

  • Augst

  • 2010

  • Hochbauamt Basel-Landschaft

  • Realisiert

Projektnummer

150

Ort

Augst

Jahr

2010

Programm

Infrastruktur, Kultur und Sport

Auftraggeber

Hochbauamt Basel-Landschaft

Status

Realisiert

Beteiligte

  • Bauleitung: Eigenmann Partner
  • Landschaft: Berchtold Lenzin
  • Ingenieur: WGG Schnetzer Puskas
  • Ausstellung: Ursula Gillimann

Fotografie

Tom Bisig, Susanne Schenker

Copyright

sabarchitekten

Als weithin sichtbares Zeichen dient das rekonstruierte Römerhaus mit seinem prägnanten Portikus. Der Eingang zum Museum liegt schlecht ersichtlich zwischen dem Römerhaus und dem Römermuseum, einem Neubau aus den 50er Jahren. Durch den Abbruch des bestehenden Kassenhäuschens ist die Schnittstelle zwischen Museumsbau und Römerhaus geklärt worden. Stattdessen ermöglicht nun die Glasfassade dem ankommenden Besucher bereits von aussen ein Blick auf die Exponate im Inneren. Umgekehrt gibt es von der Ausstellungsfläche einen Sichtbezug zum Amphitheater. Die Kasse wurde in einen unternutzten Lagerraum des Römerhauses verlegt. Ein grosser Mauerdurchbruch im Römerhaus dient nun als Schalterfenster für das Museum. Die vorhandenen alten Fenster vom Römerhaus bringen zusätzliches Tageslicht in den Kassenraum.Der Kassenraum wurde massiv vergrössert und ist gleichzeitig auch Shopkasse, welche vom Eingangsbereich her zugänglich ist. Entlang der gesamten Kassenraumrückwand wurde eine Schrankwand zum Lagerraum für Infomaterial, Shopwaren und Souvenirartikel. Die Gästegarderobe ist in einem Nebenraum untergebracht worden und bietet nun genug Platz für die erwachsenen Besucher des Museums. Das bis anhin dort untergebrachte Stadtmodell von Augusta Raurica wurde überarbeitet und an prominenter Stelle beim Ausstellungsraum untergebracht. Die Ein- und Ausgangssituation wurde räumlich getrennt, der bisher verstellte Zwischenraum zwischen Museum und Römerhaus dient als Ausstellungsfläche und Visitenkarte des Museums. An der Wand sind sechs kleine Vitrinen eingebaut worden, welche wertvolle Fundstücke präsentieren. Die Infostelen im Aussenbereich wurden auf die andere Strassenseite verlegt. Dies ermöglichte es den Garten zum Aufenthaltshof für die zahlreichen Schulklassen umzugestalten. Er dient gleichzeitig als Rückstauraum für wartende Schüler oder als Pausenplatz. Für Schulklassen wurden im Hof Schränke geschaffen, welche den geforderten Stauraum für Schultaschen bieten und das Museum entlasten.

  • Umbau Wohnhaus Karl-Barth-Platz Basel

  • Basel

  • 2010

  • Basilinova AG, c/o UBS Fund Managment

  • Realisiert

Projektnummer

147

Ort

Basel

Jahr

2010

Programm

Wohnungsbau

Auftraggeber

Basilinova AG, c/o UBS Fund Managment

Status

Realisiert

Kosten

CHF 7000000.-

Beteiligte

  • Bauleitung: Bauengineering
  • Ingenieur: Aegerter & Bosshardt Ingenieure

Fotografie

Andrea Helbling

Copyright

sabarchitekten

Das 1957 von Werner Sutter gebaute Mehrfamilienhaus am Karl Barth-Platz 9 ist das prägende Volumen am Platz. Die Fassade teilt sich in drei Teile, den Sockel, Mittelelement und dem Attikageschoss, mit dem prägnanten «Flugdach». Die Gebäudehülle ist nicht wesentlich verändert worden, bereits in den 80er Jahren sind die ursprünglichen Küchen/Bäder ersetzt worden.

Die Sanierung aller Wohnungen wird im teilweise bewohnten Zustand strangweise durchgeführt. Dabei wird der bestehende Wohnungsschlüssel, welcher vorwiegend aus 2- und 3-Zimmerwohnungen besteht, nicht verändert.

Alle Wohnungsgrundrisse sind ohne statische Eingriffe optimiert worden, die laborartigen Küchen sind jetzt den Wohnzimmern zugeschaltet. Alle Bäder werden komplett ersetzt, inkl. aller Oberflächen und Leitungen. Der dunkle, matte Eichenparkettboden ist der durchgängig in der ganzen Wohnung verlegt, ausser im Bad. Die weiss gestrichen Glasfasertapeten und die weissen Küchen, mit ebenfalls weissen Kunststeinabdeckungen machen die Wohnungen optisch grosszügiger und heller. Die beiden Dachwohnungen wurden zu einer grosszügigen 4½ Zimmerwohnung zusammengefasst, welche über eine umlaufende Dachterrasse verfügt. Das gesamte Gebäude wird mit einer verputzten Aussendämmung versehen, die Fenster haben mit umlaufend Zargen das Verhältnis zwischen Wand und öffnung verbessert. Die vormals geschlossen Balkonbrüstungen werden ersetzt durch Staketengeländer, was es ermöglicht, die nutzbare Tiefe der Balkon entscheidend zu vergrössern. Das Treppenhaus wurde durch eine dezente Farbgebung und ein neues Beleuchtungskonzept aufgewertet.

  • Umbau Wohnhaus, Aarau

  • Aarau

  • 2009

  • Privat

  • Realisiert

Projektnummer

153

Ort

Aarau

Jahr

2009

Programm

Wohnungsbau

Auftraggeber

Privat

Status

Realisiert

Kosten

CHF 800000.-

Beteiligte

  • Bauleitung: Bauteam 05
  • Ingenieur: Healy & Partner Engeneering
  • Bauphysik: Bakus

Fotografie

Andrea Helbling

Copyright

sabarchitekten

Beim bestehenden Wohnhaus an der Signalstrasse 2 in Aarau wurde der bestehende Garagen- und Wintergartenanbau abgerissen und durch einen neuen Wohnbereich ersetzt.

Die neue, eingeschossige Erweiterung ist volumetrisch gestaffelt und setzt sich dadurch als eigenständiger Baukörper vom Altbau ab. In der Nahtstelle zwischen Anbau und Neubau liegt strassenseitig der neue Eingang. Gartenseitig überspannt eine Pergola den Aussenbereich und vermittelt so zwischen Alt und Neu. Im Anbau sind die Wohnräume untergebracht; Küche, Ess- und Wohnzimmer. Der offene Raum wird durch unterschiedliche Raumhöhen gegliedert. Grosse Schiebefenster öffnen den Blick in den Garten und schaffen einen allseitigen Bezug zum Aussenraum. Im Bereich der Zufahrt steht ein Carport (offener Autounterstand) kombiniert mit einem Velounterstand.

Die Atmosphäre der Wohnräume, der Erschliessung und der Nassbereiche ist geprägt von unterschiedlich glänzendem Zementplattenbelag. Der nahezu fugenlose Einbau der hellgrün gemusterten Platten lässt Küche und Erschliessung ineinanderfliessen. Durch unifarbene Platten heben sich der Wohnraum und die zentrale Halle im Altbau deutlich von der Küche und der Erschliessung ab. Zwischen Eingang und bestehendem Gang, wo früher das Arbeitszimmer lag, findet neu eine grosszügigen Garderobe mit Reduit Platz.

Die restlichen Umbauarbeiten beschränken sich im Wesentlichen auf den Einbau eines Badezimmers im Bereich der alten Küche und die Sanierung der bestehenden Bäder. In den Zimmern im Altbau wurde neu ein Eschenparkett verlegt. Das Dach wurde komplett isoliert und nutzbar gemacht.

  • Umbau und Sanierung Hinterhaus Birmannsgasse, Basel

  • Basel

  • 2007–2017

  • Privat

  • Realisiert

Projektnummer

137

Ort

Basel

Jahr

2007–2017

Programm

Wohnungsbau

Auftraggeber

Privat

Status

Realisiert

Fotografie

  • Michael Fontana
  • Dominique Salathé

Copyright

sabarchitekten

Das Hinterhaus an der Birmannsgasse ist Teil der ursprünglichen Typologie des Quartiers – einer Ende des 19. Jahrhunderts üblichen Blockrandstruktur für Basler Stadterweiterungen. Das ursprünglich als Werkstatt und Arbeiterwohnhaus genutzte Gebäude ist als einseitig nach Nordost orientiertes Haus eigentlich wenig attraktiv für Wohnnutzungen.

Die Tiefe des einseitig belichteten Grundrisses sowie der enge Hof bestimmen die Grundanlage des lang gezogenen, ca. 7 auf 20 Meter grossen Gebäudes. Der Umbau zum Wohnhaus setzte auf einen behutsamen Umgang mit der typologischen Struktur des Gebäudes. Das Erdgeschoss wurde zum Wohn-, das Obergeschoss zum Schlafbereich. Das bestehende Treppenhaus bindet beide Geschosse zusammen. Im Obergeschoss kontrastiert die kammerartige Aufreihung der Zimmer mit dem weitläufigen rückwärtigen Erschliessungsgang. Belichtet wird dieser über einen Lichtschacht, der wie eine Art «Objet trouvé» wirkt. Im Erdgeschoss verbindet ein klammerartiger Erschliessungsbereich, der als Bibliothek genutzt wird, Eingang und Zugang zum Obergeschoss und führt zum weitläufigen Wohn- und Essbereich. Dieser wird durch einen offenen Kamin strukturiert und bildet eine Art Raumtasche. Im Winter ist der Wohnund Essraum Rückzugsort – im Sommer öffnet er sich über die grossformatigen, neu eingeschnittenen Fenster an seiner Längsseite zum Hofraum. Die meisten Materialien sind roh belassen. Helle Materialfarben prägen die Raumstimmung und interpretieren die spezifische Lichtsituation im Hinterhof. Das Gebäude ist innenisoliert; die verputzte Hoffassade wurde belassen beziehungsweise wiederhergestellt. In die bestehenden Fensterleibungen wurden neue Holzfenster ein gesetzt, die durch ihr grosszügiges Format eine gewisse Modernität in den Altbau bringen. Im Erdgeschoss wurden drei neue öffnungen in die Fassade eingeschnitten. Zwei aussen aufgesetzte Fenstertüren, die sich im Sommer ganz umklappen lassen, stellen einen neuen Bezug zum Hof her. Ein grosses festverglastes, ebenfalls aussen liegendes Fenster bietet einen grossen Ein- beziehungsweise Ausblick in/auf den Hofraum, der den Mittelpunkt und Bezugsort des Hinterhauses darstellt.

  • Umbau Wohnhaus Blauenstrasse I «Silverhouse», Basel

  • Basel

  • 2007

  • Privat

  • Realisiert

Projektnummer

127

Ort

Basel

Jahr

2007

Programm

Wohnungsbau

Auftraggeber

Privat

Status

Realisiert

Beteiligte

Ingenieur: H.P. Frei

Copyright

sabarchitekten

Das Wohnhaus an der Blauenstrasse in Basel ist ein viergeschossiger, bereits mehrfach umgebauter und dadurch in seiner Struktur stark veränderter Blockrandbau aus dem Jahr 1888. Mit einer kostengünstigen Intervention wurden die bestehenden, kleinteiligen Grundrisse ausgeräumt und mit wenigen Eingriffen räumlich neu geordnet. Auf diese Weise wurden zwei jeweils zweigeschossige, klar geschnittene Wohnungen geschaffen, die zeitgemässen Ansprüchen genügen.

Erschlossen werden beide Einheiten über das seit jeher bestehende Treppenhaus. Dieses wird einzig durch den neuen, silbernen Anstrich, der fast beiläufig auf dem Rahmen der Eingangstür erscheint, veredelt. Indem dieser Farbton sämtliche Wände, Stufen, Decken und Geländer überzieht, verleiht er der Erschliessung eine eigenwillige Atmosphäre.

Die verschiedenen Materialien verbinden sich unter der Farbschicht zu einer einheitlichen Haut, die das Treppenhaus nahtlos auskleidet und so mit einzelnen Ausblicken in den grünen Hof kontrastiert. Prägendes Element des Hofs ist die dicht mit Efeu und Weinreben bewachsene Rückwand eines Werkstattgebäudes; sie wird zur grünen Mauer, die weit in die nun offenen Grundrisse der Wohnungen hineinwirkt.

Die Innenräume selbst sind zurückhaltend gestaltet. Das Erdgeschoss bildet eine grosse, fliessende Raumfigur, in deren Mitte der Eingang liegt, abgetrennt durch ein raumhohes, eingebautes Garderobemöbel. Diese Diele im Kleinstformat öffnet sich rechts zu einer offenen, eleganten Wohnküche, von der aus man über eine gedeckte Loggia und über eine vorgefertigte Betonstufe in den Hof gelangt.

Der durchlaufende Boden aus weiss geölten Pressholzplatten unterstützt den Eindruck eines einzigen grossen Raumes. Bestimmendes Element des ganzen Parterres ist aber der raumhohe Wendeflügel in der ehemals geschlossenen Aussenwand. Steht er weit offen, erweitert sich der Wohnraum bis zur Hofmauer; in geschlossenem Zustand wird der Ausblick zu einer gerahmten Landschaftsfotografie. In den oberen Geschossen wurde nur reduziert eingegriffen. Neben der Neuordnung der Zimmer schaffen ausgesuchte Schiebewände Durchblicke und ein neues Raumgefühl, das dem kleinen Haus eine angemessene Grosszügigkeit verleiht.

  • Neubau Infrastrukturgebäude Augusta Raurica, Augst

  • Augst

  • 2007

  • Hochbauamt Basel-Landschaft

  • Realisiert

Projektnummer

117

Ort

Augst

Jahr

2007

Programm

Infrastruktur, Kultur und Sport

Auftraggeber

Hochbauamt Basel-Landschaft

Status

Realisiert

Beteiligte

Bauleitung: Glanzmann Service AG, Ingenieur: Sutter Ingenieure

Fotografie

sabarchitekten

Copyright

sabarchitekten

Im Rahmen einer künftigen Neugestaltung des Empfangsbereichs um das Theater sollte der heutige Kiosk aus Gründen der Funktionalität ersetzt werden. Geplant ist ein Restaurant als zweigeschossiger Baukörper. Im unteren Geschoss sind Kiosk und Toiletten vorgesehen, im oberen ein Restaurant mit 40 Sitzplätzen. In einer ersten Etappe wird die Toilettenanlage gebaut.

Das Volumen ist als einfacher Körper konzipiert. Es wird komplett in lasiertem Sichtbeton ausgeführt. Die Robustheit des Materials entspricht der exponierten Lage im öffentlichen Raum. Den Eingang markiert ein aus dem Betonvolumen wachsendes Vordach. Die Tür ist aussenbündig in die öffnung eingelassen. Gegenüber ist ein Fenster in Stufenglas in eine analoge öffnung eingesetzt und bringt Licht ins Innere. Der Boden im Gebäude wird durchgehend in einem roten PU gegossen. Die Wände und die Decke sind in braunen Mosaik ausgeführt und lehnen sich an die Farbigkeit der anderen Materialien der Römerstadt. Als Fundation dient eine Betonplatte, die mittels einer Trennlage von den vorgefundenen römischen Mauern getrennt ist.

  • Neubau Heilpädagogische Schule, Liestal

  • Liestal

  • 2007

  • Verein Insieme

  • Wettbewerb 1. Preis, Realisiert

Projektnummer

97

Ort

Liestal

Jahr

2007

Programm

Bildung

Auftraggeber

Verein Insieme

Status

Wettbewerb 1. Preis, Realisiert

Kosten

CHF 19000000.-

Standart

Minergie

Beteiligte

Bauleitung Fedele Architektur

Fotografie

Georg Aerni

Auszeichnungen

Auszeichnung guter Bauten BL und BS

Copyright

sabarchitekten

Das Areal für die neue Schule liegt am Rand der Stadt Liestal, an der Kreuzung Altmarkt. Das exponierte Grundstück wird dreiseitig von einer stark abfallenden Böschung begrenzt. Das im Rahmen eines Wettbewerbs entwickelte Gebäude bietet Raum für eine Tagesschule für 72 Kinder im Alter von 4 bis 18 Jahren mit unterschiedlichen Behinderungen. Der Neubau interpretiert die städtebaulich und landschaftlich exponierte Situation, indem er, der geografischen Lektüre folgend, das Plateau und die Hügelkante im Sinne einer «architektonischen Topografie» besetzt. Das Gebäude reagiert mittels eines differenzierten Volumens auf die gegebene Situation und auf das sehr spezifische Raumprogramm.

Die Staffelung des Volumens, die unterschiedlichen Gebäudehöhen sowie die Bekleidung mit unterschiedlich farbigen, leicht reflektierenden Aluminiumpanelen verunklären dabei bewusst die wahre Dimension des Gebäudes. Im Innern des Schulgebäudes sind die verschiedenen Nutzungsfamilien wie Klassenzimmer, Werkräume, Therapieräume und allgemeine Räume zu Gruppen zusammengefasst und in den jeweils spezifischen Bereichen des Gebäudes angeordnet. Vom Eingangsbereich aus werden die einzelnen Raumgruppen und Räume über zwei zentrale Kerne und einen Hauptgang erschlossen. Letzterer öffnet sich jeweils vor den Klassengruppen zu einem erweiterten Aufenthaltsbereich. Die Raumgruppen sind, im Gegensatz zu üblichen Schulhaustypologien, das strukturell massgebende Element des Gebäudes. Sie nehmen das Bild von Häusern in einem Dorf oder von Wohnungen in einem Haus auf – erhalten auf der funktionalen Ebene so eine für das Projekt charakteristische Qualität und vervollständigen das städtebauliche Thema.

  • Wohnüberbauung «In den Steinreben», Reinach

  • Reinach

  • 2006

  • Gemeinde Reinach

  • Wettbewerb 1.Preis

  • Weltausstellung 2005, Japan, Schweizer Pavillon «Der Berg», Aichi JP

  • Aichi (J)

  • 2005

  • Präsenz Schweiz

  • Wettbewerb 1. Preis, Realisiert

Projektnummer

82

Ort

Aichi (J)

Jahr

2005

Programm

Ausstellung

Auftraggeber

Präsenz Schweiz

Status

Wettbewerb 1. Preis, Realisiert

Beteiligte

Gruppe Panorama

Fotografie

Tobias Madoerin, iart

Copyright

sabarchitekten

Anlässlich der Weltausstellung 2005 in Aichi, Japan, galt es, den Auftritt der Schweiz formal und inhaltlich zu entwerfen. Im Rahmen eines Wettbewerbs entwickelte die Gruppe Panorama 2000 ausgehend vom Expo-Leitmotiv «Weisheit der Natur» ein Konzept für einen künstlichen Berg.

Das Bild des Berges repräsentiert die bekannten Landschaftsbilder der Schweiz und versinnbildlicht die natürlichen und kulturellen Ressourcen unserer Gesellschaft. Das architektonische Konzept des Schweizer Pavillons besteht aus zwei Elementen: dem eigentlichen Berg und dem Infrastrukturbereich. Der Berg erscheint als riesige, abstrakte Landschaft, die in den von den japanischen Organisatoren der Expo 05 zu Verfügung gestellten Pavillon hineingefaltet wurde.

Eine neun Meter hohe Bergkette verdeckt ein dahinterliegendes Tal, welches vom Besucher nur nach einer Wanderung durch das Innere des als Holzbau konstruierten «Massivs» entdeckt werden kann. Seine in statisch wirksame Dreiecksflächen gegliederte, ca. 1500 Quadratmeter umfassende Oberfläche wurde mit der Textur eines künstlichen Bergs überzogen. Im Inneren befindet sich die Ausstellung, welche in die Themenbereiche «Swiss myths», «visions», «risk and caution», «top of science» und «Monte Rosa Hütte» gegliedert ist.

Während seines Spaziergangs durch diese sogenannten «Bubbles» entdeckt der Besucher eine Vielzahl von Objekten unterschiedlichster Herkunft, Bedeutung, Form und Altersklasse. Sie stellen die Vielfaltigkeit der Errungenschaften der Schweizer Kultur dar. Ausgediente Armeetaschenlampen wurden umfunktioniert zu Audioguides, von denen zusätzliche Informationen zu den Objekten abgerufen werden können. Nach dem Erlebnis im Inneren des Bergs betritt der Besucher die Terrasse, welche von der künstlichen Bergwelt umgeben ist. Hier ergibt sich die Möglichkeit, den Besuch auf einem persönlichen Erinnerungsfoto festzuhalten.

Der Infrastrukturbereich ist als dreigeschossiger Bau in den Pavillon hineingestellt. Restaurant, der Shop, die Lounge sowie Büros und Technik sind hier kompakt angeordnet. Durch die differenzierte Farbgebung wird den einzelnen Bereichen eine jeweils spezifische Atmosphäre verliehen, die im Kontrast zur künstlichen Bergwelt steht.

  • Neubau Quartierzentrum Breite, Basel

  • Basel

  • 2005

  • Konsortium Breitezentrum

  • Realisiert

Projektnummer

58

Ort

Basel

Jahr

2005

Programm

Büro und Gewerbe, Infrastruktur, Städtebau

Auftraggeber

Konsortium Breitezentrum

Status

Realisiert

Kosten

CHF 18000000.-

Beteiligte

  • Landschaft: Berchthold Lenzin
  • Ingenieur: ZPF Ingenieure AG
  • Fassade mit Renée Levy
  • Generalunternehmer: Bâtigroup AG

Fotografie

Michael Fontana

Copyright

sabarchitekten

Das Breitezentrum befindet sich im Osten der Stadt, in der Nähe von Autobahn und Rhein. Als urbaner Ort an exponierter Lage bildet das Areal den Abschluss einer Reihe von geschlossenen Blockrandbebauungen zwischen Rheinufer und Zürcherstrasse. Der urbane Kontext, markant repräsentiert durch die Autobahn, wird durch die Cecile- Ines-Loos-Anlage so wie die unmittelbar angrenzende Rheinpromenade kontrastiert. Die spezifischen Eigenheiten der Umgebung, der Gegensatz zwischen Mobilität und Schrebergartenidylle sowie die zentrale Situation im Schnittpunkt von Verkehr, Erholung und Quartier bildeten die städtebaulichen Grundlagen des Projekts.

Konzipiert für ein hybrides Raumprogramm (Quartierstreffpunkt, Bibliothek, Hotel, Kindergarten, Sehbehindertenschule, Büros und Gewerbe) fasst die Architektur die unterschiedlichen Nutzungen in einem prägnanten Volumen. Das Nebeneinander der Nutzungen prägt auch das Bild der Grundrisse. Wie einzelne Gebäude fügen sich die stempelartigen Grundrisstypen zur Grossform zusammen.

Die Erschliessung des Gebäudes erfolgt über den zentralen Hofbereich, der sich zur Zürcherstrasse öffnet. Als Teil des städtisch-öffentlichen Raums übernimmt dieser Gebäudeteil eine wichtige Rolle. Der offene Eingangsbereich – als grosszügige, einladende Geste konzipiert – unterstreicht die Idee eines gemeinsamen, kommunikativen Raums.

Die zentralen Nutzungen gruppieren sich hier konzentrisch um den Hof und vermitteln die Idee des Zentrums als Dreh- und Angelpunkt des Quartiers. Der Bezug zu den Räumen des Quartierszentrums und den Aussenanlagen wird durch die Glasfassaden im Erdgeschoss, die sich öffnen lassen, noch verstärkt. über sie werden die verschiedenen Nutzungen zu einem Ganzen zusammengebunden. Aufgrund seiner umlaufenden bandartigen Fenster, die von Brüstungselementen aus anodisiertem Aluminium und perlmuttartig schillerndem Glasmosaik gefasst sind, verändert das Gebäude seine Erscheinung je nach Witterung.

  • Umbau Alte Mühle, Münchhof D

  • Münchhof (D)

  • 2004

  • Privat

  • Realisiert

Projektnummer

98

Ort

Münchhof (D)

Jahr

2004

Programm

Wohnungsbau

Auftraggeber

Privat

Status

Realisiert

Beteiligte

  • Bauleitung A. Stemme
  • Möblierung e15

Fotografie

Michael Fontana

Copyright

sabarchitekten

Die Stählemühle ist ein für das nördliche Bodenseegebiet typisches, in einer Senke liegendes Gehöft, bestehend aus Mühl- und Wohngebäude, Scheunen, Schnapsbrennerei und Schweinestall. Mit der Umgestaltung der Wohnräume des Mühlengebäudes so wie mit dem Umbau des Schweinestalls in ein Büro- und Lagergebäude für einen kleinen Kunstbuchverlag erhält das Ensemble eine neue Nutzungszuschreibung und wird in seinem Zusammenhalt gestärkt. Im bereits mehrfach umgebauten Mühlen- und Wohngebäude lassen sich die aus denkmalpflegerischer Sicht relevanten historischen Spuren auf die Gebäudehülle und die innere Raumstruktur reduzieren; diese wurden entsprechend beibehalten.

Der Umbau beschränkte sich auf ein neues Farb- und Materialkonzept, welches mit diversen Schreinereinbauten ergänzt wurde. Mit einer ausgesuchten Materialwahl wurden den einzelnen Nutzungen entsprechend unterschiedlichste Raumstimmungen erzeugt. Im Zentrum steht der alte Mühlraum, dessen unregelmässige, historisch gewachsene Tragstruktur mit den neu eingebauten Beton ebenen gleichzeitig kontrastiert und zu einer eigenen Wohnlandschaft zusammenwächst. Lager, Archiv und Büro des Kunstbuchverlags sind im bereits früher umgenutzten Schweinestall untergebracht – in einer Hallenkonstruktion mit tragenden, als Ständerkonstruktion ausgebildeten Aussenwänden, die von einer engen Serie von filigranen Dachbindern überspannt werden. Dazu wurde innenseitig eine neue Hülle (Wände, Boden, Decke) mit nichttragenden Zwischenwänden eingebaut. Ein aus den Dimensionen der bestehenden Konstruktion entwickeltes, raumhohes Fensterelement wurde – den jeweiligen Nutzungen entsprechend – einzeln oder als Serie in die alte Bretterschalung eingeschnitten. In der Grundrissdisposition umgibt eine L-förmige Büroschicht das grosse Bücherlager mit Infrastrukturräumen. Der offene, fast elegant wirkende Innenraum kontrastiert hier mit der konstruktiven Einfachheit des Zweckbaus.

  • Neubau Wohnhaus, Neuwiller F

  • Neuwiller (F)

  • 2004

  • Privat

  • Realisiert

Projektnummer

75

Ort

Neuwiller (F)

Jahr

2004

Programm

Wohnungsbau

Auftraggeber

Privat

Status

Realisiert

Beteiligte

  • Bauleitung: BET Morganti
  • Ingenieur: Schnetzer Puskas

Fotografie

Michael Fontana

Copyright

sabarchitekten

Das Einfamilienhaus Wissler befindet sich am Rand von Neuwiller im Elsass. Der Baukörper besetzt die Parzelle in ihrer Mitte und scheidet zwei Außenraumbereiche aus: Einen grosszügigen Vorgartenbereich zur Strasse hin und einen ruhigeren rückwärtigen Gartenteil. Der Grundriss basiert auf zwei in ihrer Form und Größe ähnlichen Teilen. Ein überhoher Wohn- und Essbereich zum Einen, der Eingangs und Schlaftrakt zum Anderen. Das verbindende Dach folgt der Höhenabwicklung der darunterliegenden Raumschichten und fügt die Teile zu einem Ganzen. Vom Eingang führt eine Treppe zum höher liegenden Wohn- und Essbereich mit offener Küche. über die zentrale Treppe gelangt man weiter zum Schlafbereich mit drei Schlafräumen, zwei Bädern und einer dazwischen liegenden Ankleide. Das elegante Volumen ist als heller, verputzter Körper mit großflächigen Ost-West orientierten Verglasungen angelegt. Der großzügige Wohnbereich wird über ein um drei Meter auskragendes massives Vordach mit dem rückwärtigen Garten verschränkt. Die Materialisierung der Innenräume ist ruhig und zurückhaltend. Einzig der intensive Parkett aus Bambus, der auch den Küchenkorpus überzieht, gibt den Haupträumen eine gewisse Farbigkeit.

  • Atelier im Hinterhof, Basel

  • Basel

  • 2002

  • Privat

  • Realisiert

Projektnummer

64

Ort

Basel

Jahr

2002

Programm

Ausstellung, Büro und Gewerbe

Auftraggeber

Privat

Status

Realisiert

Fotografie

Annette Fischer

Copyright

sabarchitekten

Die bestehende, ungeheizten Gewerberäume im Hintergebäude an der Haltingerstrasse werden für eine Nutzung als stilles Gewerbe (Ateliers) umgenutzt. Die einseitig belichtete Gewerbestruktur wird hofseitig über eine neue Holzfassade belichtet, die in die bestehende Betonstruktur eingepasst wird. Wie Intarsien sind die Fassadenfelder in die bestehende Struktur eingelagert. Die handwerkliche Fertigung aus Eiche schafft eine robuste und wohnliche Qualität und prägt die sachlich gehaltenen Innenräume.

  • «Schweiz vs 2.1», Panorama für die Expo02, Murten

  • Murten

  • 2002

  • expo.02

  • Realisiert

Projektnummer

39

Ort

Murten

Jahr

2002

Programm

Ausstellung

Auftraggeber

expo.02

Status

Realisiert

Beteiligte

  • Konzeption: Gruppe Panoram2000
  • Projektion: IArt

Fotografie

Tobias Madörin

Copyright

sabarchitekten

Anlässlich der Landesausstellung Expo.02 realisierte die Gruppe Panorama2000 das Panorama «Schweiz Version 2.1» im Kubus von Jean Nouvel: eine 360°-Projektion von 23 Metern Durchmesser und 7 Metern Höhe, die hochauflösende digitale Bilder in Echtzeit darstellte. Mit ausgesuchten Bildern der Schweiz lotete die Gruppe Begriffe wie Realität, Identität, Zugehörigkeitsgefühl und Heimat aus. So wurden die Besucherinnen und Besucher in einen 360° Bildraum geführt und auf auf eine Reise durch Zeiten, Geographien, Geschichten und Mythen des Landes mitgenommen.

  • Neubau Jakob-Burckhardt-Haus, Basel

  • Basel

  • 2000

  • Immobiliengesellschaft Bahnhof Ost

  • Studienauftrag

Projektnummer

55

Ort

Basel

Jahr

2000

Programm

Büro und Gewerbe, Städtebau

Auftraggeber

Immobiliengesellschaft Bahnhof Ost

Status

Studienauftrag

Beteiligte

  • Ingenieur; A. Zachmann, Basel
  • Fassadenplanung; P. Petignat, Riehen

Auszeichnungen

1. Preis ex - aequo

Copyright

sabarchitekten

Das geplante Jacob-Burckhardt-Haus setzt die grossmassstäbliche Überbauungsstrategie des Peter-Merian-Hauses fort. Der Gürtel zwischen Gleisfeld und der Verkehrsachse “Nauenstrasse” wird als eine gesonderte Zone behandelt. Die Dimension und das Programm (30‘000m2) der gebauten und geplanten Gebäude defi nieren eine eigene Massstäblichkeit, die sich aus der kleinteiligen Morphologie der umgebenden Stadtstruktur löst.

Das Gebäudevolumen lässt sich in sechs Einheiten aufteilen, die wiederum geschossweise vermietet werden können. Die flexible Stützenstruktur lässt somit eine grösstmögliche Nutzungsvielfalt zu. Die beiden Kopfelemente sind jeweils speziell ausgebildet. Die tief eingeschnittenen, an der Fassade liegenden Höfe erlauben es, die innenliegenden, schlechter belichteten Bereiche zu minimieren und die an der Fassade liegenden Arbeitsbereiche zu optimieren. Die Fassade ist als durchgehende, vorgehängte Glasfassade konzipiert. Das umseitig mit verschiedenfarbigen Isoliergläsern verkleidete Gebäude suggeriert Komplexität und Nutzungsvielfalt. Die teilweise opaken, teilweise transparenten und transluziden Glasscheiben erinnern an über- und nebeneinander gestapelte Container, die sich zu einem komplexen, farbigen Muster fügen und die Identität des Gebäudes prägen.Teil der Glasfassade sind ebenfalls die im Raster angeordneten vertikalen Lamellen aus mattiertem Glas, die das Gebäude raupenartig umschliessen und die Wahrnehmung des Gebäudes durch die Bewegung verändern. Durch den gefalteten Baukörper öffnen und schliessen sich somit die unterschiedlichen Sequenzen und dynamisieren den Strassen- und Schienenraum.

  • Neubau Schulanlage mit Theater, La Tour-de-Trême

  • Bulle

  • 1999–2004

  • Association des communes de la Gruyère

  • Realisiert

Projektnummer

52

Ort

Bulle

Jahr

1999–2004

Programm

Bildung, Infrastruktur, Kultur und Sport

Auftraggeber

Association des communes de la Gruyère

Status

Realisiert

Kosten

CHF 65000000.-

Beteiligte

  • Bauleitung: O. Charrière & A3
  • Ingenieur: Gex & Dorthe
  • Elektro: Scherler
  • HLS: Tecnoservice

Fotografie

Michael Fontana

Auszeichnungen

Distinction romande d'architecture

Copyright

sabarchitekten

Das Greyerzerland liegt im französisch sprechenden Teil des Kantons Freiburg. Die sanfte Topographie des Gebietes kontrastiert hier mit der imposanten Fernwirkung der Alpen. Die idyllisch, in ihrer Längsrichtung Nord-Süd orientierte Parzelle liegt am Rand des Dorfes La Tour-de-Trême an der Grenze zu weiten Agrarflächen.

Die im Programm geforderten Funktionen – eine regionale Schule mit vierzig Klassenzimmern, ein Theatersaal für 800 Personen, ein Schulrestaurant, sowie eine Dreifachsporthalle – sind auf drei eigenständige Körper aufgeteilt. Eine präzise zueinander gestellte Konstellation von unterschiedlich gearteten Baukörpern konzentriert sich auf der Parzelle zu einer offenen Figur. Zwischen den Volumen entsteht ein T-förmiger Aussenraum, der das eigentliche Herzstück der Anlage bildet. Dieser Raum ist Pausenbereich und Verbindung zwischen den Gebäuden sowie den Verkehrspunkten im Norden und Süden der Parzelle. Durch das gegenseitige Ausdrehen der Körper werden die Hof- und Wegräume ausgerichtet und dynamisiert.

Ausschlaggebend für die geometrischen Bezüge ist der abstrakte Bezug zur Aussicht. Dimension und volumetrische Ausprägung integrieren die Gebäude in die Landschaft. Ihr Charakter oszilliert zwischen einer dem ruralen Kontext verpflichteten Architektur und einer der Weite der Landschaft angemessenen Grösse und Massstabslosigkeit. Alle Baukörper sind in eingefärbtem Sichtbeton ausgeführt. Durch das Sandstrahlen der Oberfläche wird das beigefügte gebrochene Kies aus Jurakalk freigelegt. Die rohe Oberfläche kontrastiert mit den grossen, fein detaillierten Fenstern aus Aluminium mit verschieden reflektierendem Glas.

  • Umbau und Erweiterung Wohnhaus Aescherstrasse, Basel

  • Basel

  • 1998–1999

  • Privat

  • Realisiert

Projektnummer

32

Ort

Basel

Jahr

1998–1999

Programm

Wohnungsbau

Auftraggeber

Privat

Status

Realisiert

Beteiligte

  • Bauleitung: sabarchitekten
  • Ingenieur: D. Weiss

Fotografie

Michael Fontana

Copyright

sabarchitekten

Das Wohnhaus aus der Gründerzeit befindet sich im Basler Paulusquartier, am Zeilenende zum Benkenpark. Mit drei unterschiedlich proportionierten Räumen, zwei Schlafzimmern im Erdgeschoss und einem Musikzimmer im Obergeschoss, wurden die bestehenden Wohnungen jeweils geschossweise erweitert. Dabei schiebt sich das neue Volumen über einen bereits in den dreissiger Jahren erstellten Anbau. Strassenseitig springt der Kubus leicht aus der Bauflucht der Zeile hervor und artikuliert mit präzise gesetzten öffnungen und dem markanten Dachaufbau seine Position als Kopfbau. Zum Garten hin entsteht durch eine Abstufung des Volumens eine räumliche Verzahnung mit den bestehenden Terrassenbereichen. Dort verschmelzen die individuellen Aussenbereiche des Alt- und Neubaus zu einem Ganzen.

Der einfache, fein verputzte Körper lehnt sich in seiner Materialität und Farbigkeit an die Erscheinung des Altbaus an. Die grossen Eichenfenster mit ihren kräftigen Holzgesimsen interpretieren dabei die ortsüblichen Fenstergewände aus Stein neu. Zwei Eckfenster inszenieren die eindrückliche Trauerweide, die auf allen drei Geschossen unterschiedlich erlebbar wird. Innenräumlich stellen die präzise gesetzten Öffnungen den Bezug zu dem umseitig erlebbaren Aussenraum her; der Ausblick wird zur spezifischen Qualität am Ort.

  • Neubau Mehrfamilienhaus Äussere Baslerstrasse, Riehen

  • Riehen

  • 1996–1997

  • Privat

  • Wettbewerb, Projekt bis Baueingabe

Projektnummer

0

Ort

Riehen

Jahr

1996–1997

Auftraggeber

Privat

Status

Wettbewerb, Projekt bis Baueingabe

  • Schulheim «Gute Herberge», Riehen

  • Riehen

  • 1996

  • Hochbauamt Baselstadt

  • Studienauftrag, 1. Preis

Projektnummer

2

Ort

Riehen

Jahr

1996

Programm

Bildung, Städtebau, Wohnungsbau

Auftraggeber

Hochbauamt Baselstadt

Status

Studienauftrag, 1. Preis

Beteiligte

In Zusammenarbeit mit Yves Stump und Hans Schibli

Im Studienauftrag für das Schulheim «zur Herberge» wurde eine Lösung gesucht, das parkähnliche Areal mit seinen teilweise denkmalgeschützten Bestandsbauten den neuen pädagogischen Bedürfnissen anzupassen. Neben dem Umbau der bestehenden Gebäude als Schul- und Wohngebäude, ging es darum zusätzlichen Raum für Wohngruppen zu entwickeln.

Das Areal «zur Herberge» ist als grosser Park und Freiraum erlebbar. Stolze, vor der Geländekante aufgereihte Bauten, ein wunderbarer, dichter Baumbestand und Grünräume mit vielseitigen Eigenheiten und Stimmungen prägen den Ort. Diese Qualitäten werden von den starken lmmissionen, die von der stark befahrenen Strasse ausgehen, empfindlich gestört. Trotz diesen Gegebenheiten und des erheblichen, zu planenden Bauvolumens, soll die Würde und Grosszügigkeit, die dem Anwesen eigen sind erhalten bleiben.

In Fortsetzung der Kirche säumen vier grossformatige, in ihrer Massstäblichkeit ähnliche Volumen die Strasse und definieren dessen Raum in Form einer «Solitärbebauung» im Park. Kirchgelände und gesamter Park werden trotz unterschiedlicher Nutzung als Einheit und besonderer Ort gelesen. Um die neuen Bauten bestmöglich zwischen den Bäumen und der erhaltenen Bausubstanz einzugliedern, werden die Baukörper klar strukturiert, in der Höhe variiert und treten als addierte Volumenkompositionen in Erscheinung, die in sich Körnigkeit und Massstäblichkeit auf die Bestandbauten beziehen.

Neu- und Altbau und Naturraum werden zu einem gleichwertigen Nebeneinander und ergänzen sich in gegenseitiger Spannung. Im hinteren Bereich des Areals bilden kleinere Volumen den fliessenden, Übergang zu Wald und unterem Grünbereich und zeichnen die Geländekante. Dem Betriebsablauf angepasst finden unterschiedliche Nutzungen und Anforderungen Im Ensemble ihren spezifischen Ort, Massstab und architektonischen Ausdruck was für Bewohner und Personal zu einer ein einfachen Übersicht und guten Orientierung für das Personal beiträgt. Die klare Trennung der Wohn-, Schul- und Personalbereiche mit ihren entsprechenden Umräumen stärken das differenzierte Erleben der Tagesabläufe (Schulweg, Pausenplatz etc.) trotz einer hoher Nutzungsdichte auf dem Areal.

  • Wohnüberbauung Brohegasse, Bettingen

  • Bettingen

  • 1995

  • Hochbauamt Baselstadt

  • Wettbewerb, 1. Preis

Projektnummer

1

Ort

Bettingen

Jahr

1995

Programm

Wohnungsbau

Auftraggeber

Hochbauamt Baselstadt

Status

Wettbewerb, 1. Preis

Beteiligte

In Zusammenarbeit mit und Hans Schibli und Yves Stump

Die Landgemeinde Bettingen ist geprägt durch eine organisch gewachsene Struktur von Einzelbauten. Erst in neuerer Zeit sind einzelne Gruppenbauten entstanden. Die Parzelle, in unmittelbarer Nähe zum Dorfkern gelegen, befindet sich am Übergang zwischen markanten Einzelbauten (Baslerhof, ehern. Anstaltshaus). und der sich oberhalb erstreckenden lückigen Einfamilienhausstruktur. Eine differenzierte Komposition mit unterschiedlichen Baukörpern nimmt die heterogenen Bebauungsmuster auf selbstverständliche Art und Weise auf und vernetzt sie mit Dorf und Umfeld. Es entsteht so ein durchlässiges architektonisches System, das mit Körnung und Masstäblichkeit auf die vorhandene Struktur reagiert. Im dorfnahen, unteren Bereich betonen mehrgeschossige Baukörper den unmittelbaren Bezug zu den umliegenden markanten und kompakten Einzelbauten; im oberen Bereich wird das bestehende System Strasse -Grünraum - Haus neu interpretiert und in verdichteter Form umgesetzt. Die Bebauung ordnet sich so trotz eigenständigem, zeitgenössischem Ausdruck mit angemessener Dichte und Körnung in die be­stehende Struktur ein und findet zu einem neuen, heterogenen Ganzen. Die einzelnen Kuben sind so gestaffelt, dass eine ruhige aber abwechslungsreiche Dachlandschaft entsteht. die nicht mit den bestehenden, traditionellen Dächern konkurrenziert.